四川成都英县乡村别墅定制设计图、农村建房建设修订图、施工队

成都英县温先打算在老家建一座乡下别墅,平时很少回去。 盖了房子之后,可以在周末时度假。 他们希望能够建造房子的安静,不想过于夸耀。 然后和我们一起看这所房子的设计图。
建筑风格采用传统的中式风格

外墙上贴上蓝砖,屋顶上盖上灰瓦
房子整体布局的功能还不错。 主要有堂堂、卧室、厕所、书房、起居室、客卧、主卧、餐厅、厨房。
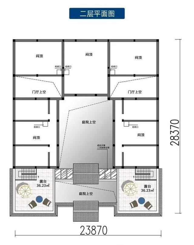
二楼有展望台


为生活盖房子,为舒适盖房子
即使你在山河的海里

你可以放心地让我们设计房子
我们修订的不仅是房子,也是房子
我们不仅设计住宅,还设计憧憬的生活
转载请注明出自轩鼎别墅设计="://lemeizhai.com" target="_self">://www.lemeizhai.com