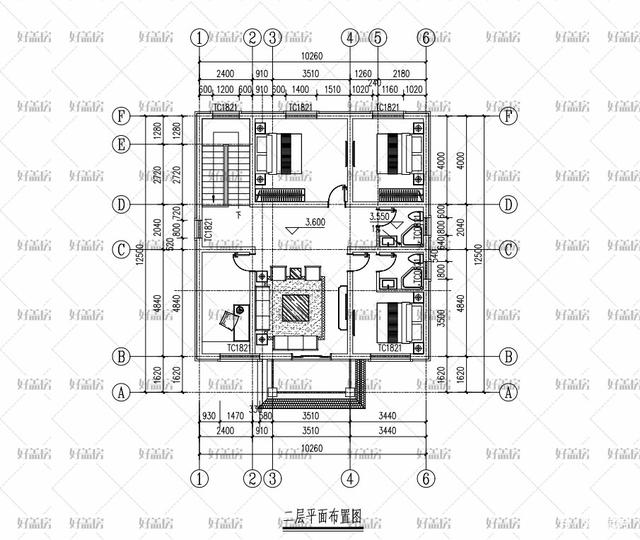
农村自建住房设计图

乡下的朋友们以自己的房子建造而感到自豪,从情报中可以看到每一个人,很多人都在建三层楼的建筑。 构建设计地图,编辑不侮辱任务,选择一套,占地面积120.3平方米,外部气氛合理实用,希望能帮助你。


建筑层数: 2层
结构形式:砖混结构
开间尺寸: 10.6米
深度尺寸: 11.3米
占地面积: 120.3
建筑面积: 237
建筑风格:中式风格


户型布局: 5室3厅1厨3卫
本体成本: 14~25万左右(因地域差异而稍有变动)
转载请注明出自轩鼎别墅设计="://lemeizhai.com" target="_self">://www.lemeizhai.com