100平的小二层别墅设计,要花20万左右的成本,你想做一套吗?

在农村盖房子时,大家普遍关心的是宅基地的大小和成本的高低问题,现在农村土地的管理越来越严格,那些宅基地小,想盖房子的朋友该怎么办?

别担心,今天小编给大家带来了这个小小的两层别墅,解决了宅基地的小问题。 同时,建设的价格在20万左右。 农村宅基地小,又适合想建造小别墅的人。
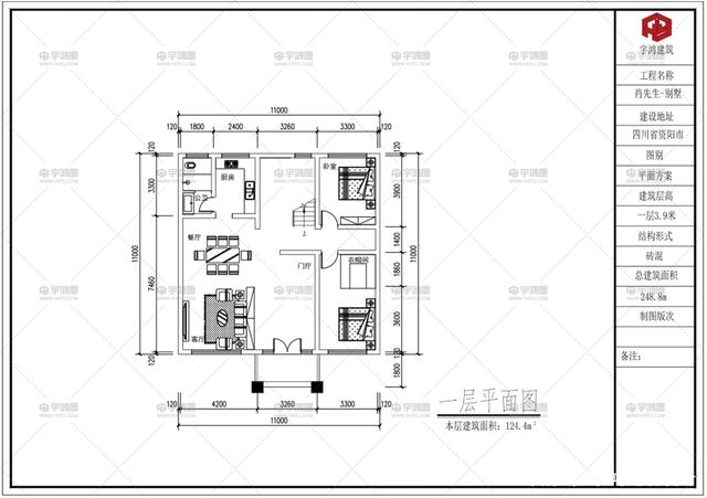
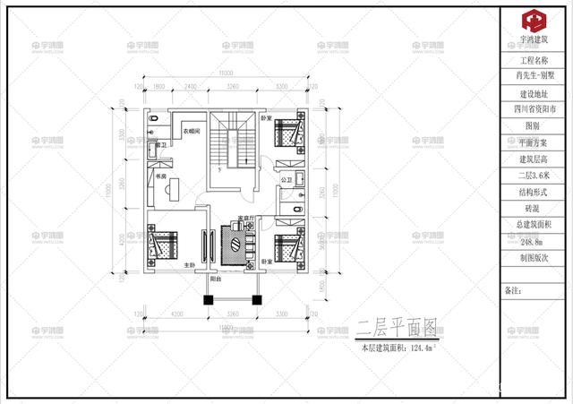
这座小小的两层别墅的开间是11米,进深是11米,整个基础是正方形。 建筑面积124.4平方米,建筑结构形式为砖混,成本20万左右。
想要建造小别墅的你,一定对那个平面布局设定订正感兴趣,附在图纸上

一楼从大门进入是大门,客厅设计在左侧,然后停止吃饭,厨房设计在餐厅的后面。 右侧设有两间卧室,主要睡在帽子之间。

二楼修订了三间卧室、食品房和家庭房,适合家人晚上一起喝茶、看电视、聊天。 还订立了适合读书和收集资料的书房。
像这样修订的小的两层别墅,虽然成本不高,但是可以住下一个家庭,在农村建造这样的房子,也适合将来的生活。 感动了吗? 不想来套餐吗?
转载请注明出自轩鼎别墅设计="://lemeizhai.com" target="_self">://www.lemeizhai.com