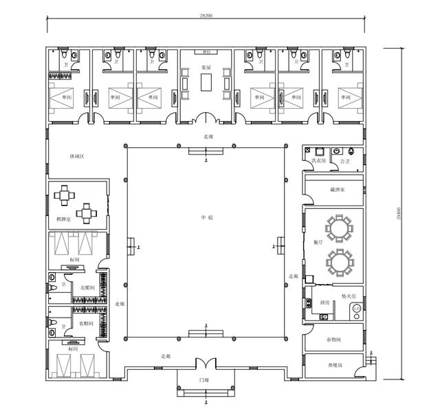
图纸推荐: 28.2mx29.4m古典中式四合院自建别墅原创设计图纸

现在越来越多的业主喜欢中国式四合院,以前建设四合院一般用于建造民宿,现在很多人自住。 四合院都是两侧对称的形式,体现了一种对称美,更体现了一种豪气、霸气。 进入中式风格的庭院,进入庭院后,你就可以品尝到其中包含的意境和韵味。

层数: 1楼
结构形式:砖结构
风格:四合院中式风格
占地面积: 130平方米
建筑面积: 260平方米
效果图

合院的设计保持家族隐私,适合农村这样的开放大环境。
这种户型设计有独立厨房,打扫和食材处理方便,农村做柴房也方便,不污染其他区域,入户在院子里,可以种花草,平时也可以晒太阳,温暖的洋洋感觉都很美。
室内布局有规律、透明,1楼有3间卧室,2楼有4间卧室,适合大家和民宿。
转载请注明出自轩鼎别墅设计="://lemeizhai.com" target="_self">://www.lemeizhai.com