两栋欧式别墅设计,迷人的农村别墅,第一间客厅空着
两栋欧式设计,迷人的农村别墅,第一间客厅空着。 每个人都有自己的人生计划,在合适的年龄应该相应地做什么,也许所有的事情都不能按照自己的计划执行,但人生的一些大事,结婚生子,买房,盖房子等,一点也不含糊。 下面两座设计成简单的欧洲风格的农村别墅,外观形状真的是很有魅力的类型,其中第一座别墅的客厅选择了空的设计。

户型11.413米,用砖砌,有一扇落地窗,外壁面用红砖,米色的真石漆和几个部件装饰,屋顶上有蓝色的釉砖。



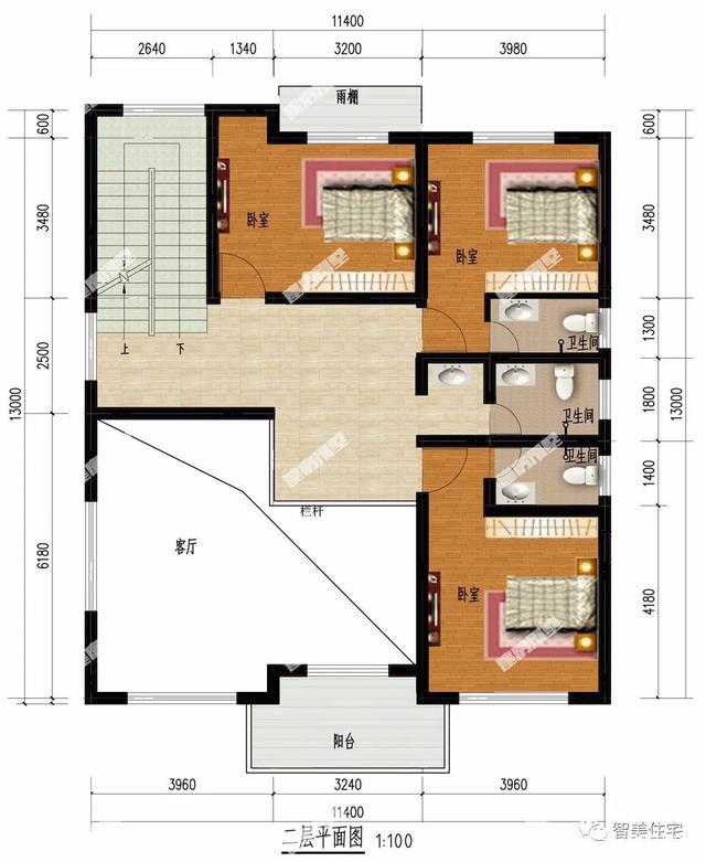
平面图:一楼室内设计成南北通透,选择空荡荡的客厅和休闲茶室,一个主卧室室内独卫生活方便,二楼设有三个卧室,其中两个卧室有私卫,三楼有同一三个卧室,还有一个书房。

户型11.9613.08米,典雅的西欧别墅,外壁面配浅米色的真石漆涂料装饰,格子窗,屋顶配青瓦。



平面图:一楼室内南北通透,一室两室一厨两卫,主卧室内私卫,客厅和餐厅空间宽敞,根据需要配置小餐厅和大餐厅,二楼有一家主卧和三家卧室,一家储藏室和展望阳台,三楼三家
如果你有能力在老家建别墅,你会选择欧式别墅户型吗?
转载请注明出自轩鼎别墅设计="://lemeizhai.com" target="_self">://www.lemeizhai.com