11.4×12米三层乡村小别墅设计,大露台落地窗,功能丰富多彩
在形象上,长大总是很突然。
一件事,一个人
可能只有一句话。
就像大人们经常说的话
这孩子突然长大了。
其实,上年纪只是一瞬间。
“人类的智慧包含在两句话里
等待和希望。 ’”
什么时候变成泡沫的时候,是什么感觉?
天地大,海市蜃楼身材小,少年孩子们江湖老。
买桂花想载酒,终于不像了,少年游。
花开了,花落了,人总是很老
但是总是有人能晚一点。
悠闲地生活,喂马,劈柴,晒太阳
在乡下盖了一所小房子,房子前面的房子后面种了几棵果树
夏天在树下刮凉风,秋天打一些水果吃得很开心
春天欣赏这盛开的花,冬天在树下走向雪人
生活中总是有乐趣,有看不完的五彩缤纷的颜色
平坦如水,但喜悦异常
愿你有爱,有期待,浪费人生。
建筑参数:
占地面积: 11.4米12米
占地面积: 136平方米
建筑面积: 420平方米
建筑结构:砖结构
层数: 3层
主体预算: 40万

这样的房子一定也是你的最爱吧。 大露台,大落地窗,简单的大气外观,方正的形状,没有花里胡哨的颜色,没有霸气的旁边漏的雕刻,占地面积千平的无奢侈,都是自然堆积,给人舒适的感觉,这个小别墅最受欢迎。



一楼设有客厅、堂堂、餐厅、厨房、储藏室、两间卧室和厕所。 布局合理,功能规划一目了然,宽广的门头表现出卓越的姿态,具有广阔的面积,在空间上与堂堂相通,相互一体化,发挥大气的风格,加上落地窗的设计,增加视野的宽度,更时尚美丽。 堂堂位置容易储藏正确的物资,厨房餐厅相对独立,从小门进入餐厅,与厨房相连,客厅区域不受干扰,南边卧室采光,靠近厕所,方便日常生活起居,老人
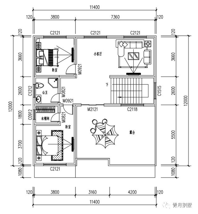
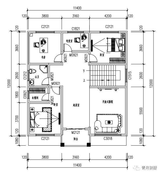
客厅、开放式剧场、书房、电竞室、2卧室、厕所、衣帽间、阳台设在二楼。 二楼的功能设计比较丰富,富有年轻时尚色彩,客厅外置阳台,维持室内空间流通和充分采光,也可用于洗涤物,非常实用,开放式家庭影院面积也比较大,提供精神娱乐的生活空间三楼设有小客厅、两间卧室、衣帽间、厕所和露台。 西边的功能布局和二楼一样,这样上下承接,有利于水电管道的安装,也为日常生活提供了方便,小客厅外连接了大露台,空间宽敞,空气清新,可以享受生活,大露台是休闲
我认为这三层的小别墅最大的特征是空间的活用。 不仅充分满足了生活的需要,还保证了功能设计的多样性。 而且,没有额外的设计,没有公共卫生,没有套房,可能对有些人来说并不完美,但同样很多人追求的是,必须看个人。
装修风格参考:
卧室:

书房:

转载请注明出自轩鼎别墅设计="://lemeizhai.com" target="_self">://www.lemeizhai.com