农村别墅设计:小宅基地应该怎么建别墅? 是的。 今天TA来了
经常有客人问我,如果家里是小宅基地怎么办? 家人人口很多我该怎么办? 盖什么样的房子合适? 所以,今天TA来了! 为小宅邸精心挑选的四楼一栋欧式小别墅,大气与优雅共存,弥漫着质感的气息
01
建筑参数的成本
开间: 8.5米
深度: 11.4米
占地面积: 93.4平方米
建筑面积: 373.6平方米
建筑结构:砖结构
估计成本: 45万
注:根据地区不同,材料成本、地基不同、人工费、运输成本等原因,主体成本也不同。
02
外观效果图

点击后显示放大图。

镜像图

多角度演示文稿


多角度演示文稿
带上花园,清晨练习冬天供暖是个好地方,为家人提供室外安全的活动空间。 一楼和二楼的外立面采用统一的复古砖面,三楼和四楼的外立面是现在非常流行的刷脸涂装,二楼之间也有砖雕装饰,从四楼的阳台到一楼的平台,从上到下都是大气的质感。
03
内部结构图

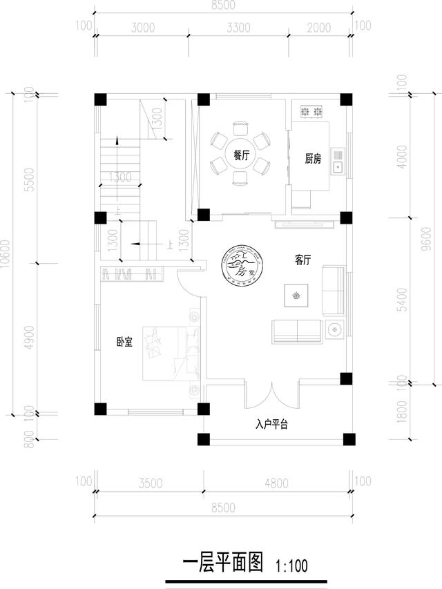
别墅的一楼有客厅、餐厅、厨房和卧室。
一楼房子的功能设计满足了基本大厅楼层的需要,入门在客厅,宽敞明亮,招待客人也不拥挤。 料理的设计满足了家庭日常饮食的需要,一楼的卧室可以作为老人的房间。
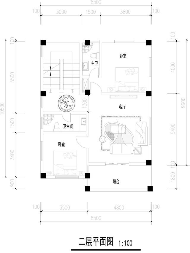
别墅二楼有客厅、两间卧室、两个厕所和阳台。

主卧有独卫,另一个厕所与次卧相连但没有联系。 保证居民的方便,也为其他家庭提供应急需求的方便。 客厅和阳台相连,采光很好,房间里阳光普照,看起来很暖和。
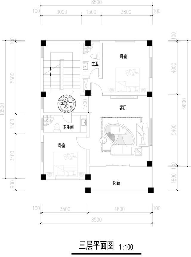
别墅的三楼有客厅、两间卧室、两个厕所和阳台。

三层房子的配置和二楼一样,充分考虑了小宅基地的特殊性,满足了家人的居住需要。
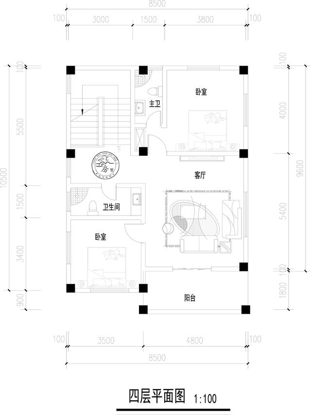
别墅的四楼有客厅、两间卧室、两个厕所和阳台。

4楼房屋的内部配置和2楼的3楼一样,这样就不会导致小宅基地占地面积受到限制的尴尬状况。 同时,四楼的平面海拔很高,阳台休闲观光可以看到美丽的景色。
转载请注明出自轩鼎别墅设计="://lemeizhai.com" target="_self">://www.lemeizhai.com