对生活充满热情,看看这座充满爱的农村自建别墅设计!
灵活和家庭导向,阿里37是一个梦想的家,在那里的记忆被创造和珍惜了许多年的未来。
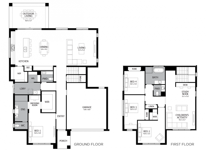
在这里热情地生活是如此的容易,这套令人惊叹的大师套房巧妙地与家的其他部分分开,就在底层的前部,远离主起居区。配有步行长袍、更衣室和宽敞的套间,在漫长的一天结束时,这是家长们的豪华避难所。孩子们会喜欢一楼的,那里有三间宽敞的卧室,还有一个大型的儿童活动--包括书房--给他们自己的隐私和空间。


="://lemeizhai.com" target="_self">转载请注明出自轩鼎别墅设计://www.lemeizhai.com