如果你在寻找一个充满个性、实用性和热情的家,你会爱上这个农村自建二层别墅设计图的!
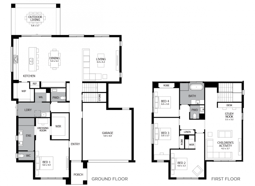
如果你在寻找一个充满个性、实用性和热情的家,你会爱上灵魂39。这种流线型设计提供了最佳的简洁性,使日常生活变得轻松。这两层楼划分了住宿和居住区域,为您提供了一天结束时在一楼所需的避难所,那里有四间卧室、一间儿童活动和两间浴室,提供了隐私和和平。与此同时,楼下有一大片灵活的空间,有开放式的家庭生活、家庭剧院、家庭办公室和一个轻松愉快的户外生活区。


转载请注明出自轩鼎别墅设计="://lemeizhai.com" target="_self">://www.lemeizhai.com