马上就要中秋节了,国庆节期间是大家建房热,因为大家有更多的时间来选定和规划自己的别墅,今天我们提供给大家的是一套现代别墅设计。接下来带你去了解一下这套房子的设计。
别墅细节
卧室:4
建筑面积:165平方米
层数:2
浴室:2
车库:1
效果图:



现代风格别墅的设计,是一个由4个卧室2层的房子,离大门三米处有一个小门廊,通向起居室,一直通到餐厅和厨房。左边是楼梯下的一个小储藏室,对面是一个普通的厕所和浴缸。L 型厨房包括冰箱,烹饪灶,厨房洗涤槽和鞋柜,是厨房的主要组成部分。
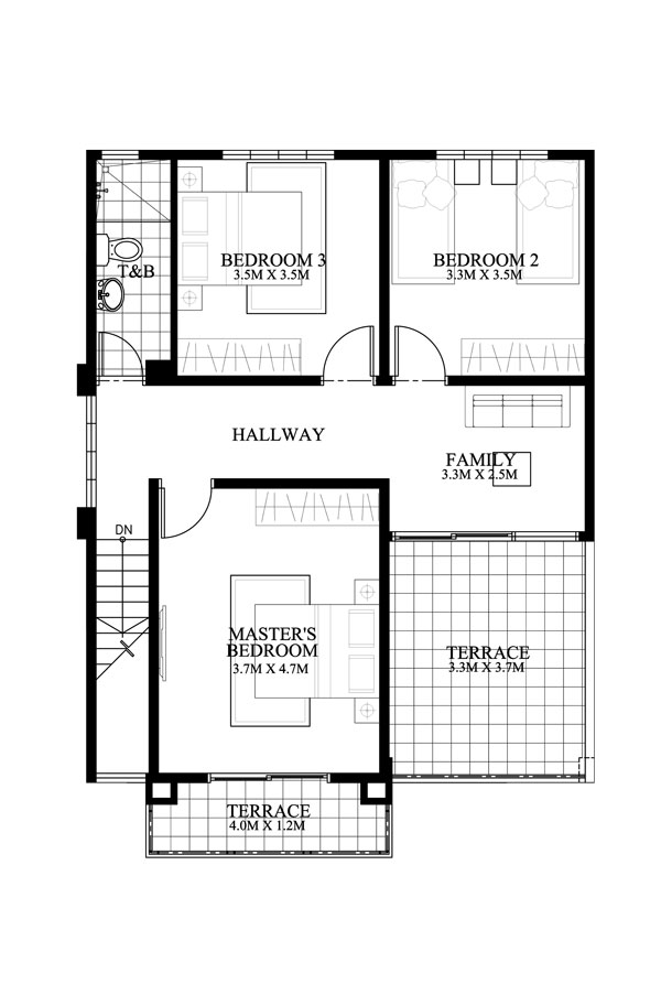
平面图:
一层包括一间3.3米宽3.5米长的卧室和一个可容纳一辆车的车库。一楼的1号卧室也可以作为女佣的房间。

二楼由主人的卧室和内置的橱柜组成,还通过一个铝制框架推拉门向露台开放。普通的卫生间和浴缸就在厕所的正上方,浴缸在下面。卧室2和3以及家庭室是其他组件,包括车库上方的露台,它是开放的,可以自由地看到周围的环境。

转载请注明出自轩鼎别墅设计="://lemeizhai.com" target="_self">://www.lemeizhai.com