上学的时候成绩比成绩好;当你工作时,你的薪水比你的薪水高;当你盖房子时,也是一样的。邻居之间肯定会有对比。如果你建了一栋漂亮的别墅,你会分分钟碾压邻居。湖南邵阳市延宗个人裁缝的欧式别墅,霸气华丽。不如实力派好看。它建在当地,绝对轰动。现在生活越来越好。每个人都想回到自己的家乡,建一所又好又舒服的房子。如果需要盖房子,可以参考我们的别墅图纸设计。随着现代社会和经济的快速发展,人们的生活越来越富裕。现在说到结婚,两件事是必须的,一件是车。不用说,现在几乎家家户户都有车,房子是个难题。位置、面积、装修设计都很朴素清晰。






本户型为新款欧式豪华型三层别墅设计图,外观美观大方,颜色选用暖色为主,温馨浪漫。布局典雅, 凸出式阳台,使得更具美观。改进窗户布局,让您的房子更加美观,采光,通风更顺畅。内部布置紧密,更多卧室,方便居住。自建不仅仅是实用,更让让您在家体验高端舒适的消费服务,令人羡慕。
建筑层数:地上3层,建筑总高度(到屋脊高度):13.013米,总建筑面积:273.95平方米
结构体系:框架结构,抗震设防烈度七度,屋面为现浇混凝土屋面。
结构层高:一层层高3.6米,二层层高3.2米,三层层高3.2米





本户型为三层欧式豪华别墅设计方案,外观看起来恢弘大气,超大的落地窗,美观的罗马柱,中空的客厅,看上去非常高端、大气,三层大露台,满足不同的需要,自建这套别墅绝对让人们羡慕。
建筑层数:地上3层,建筑总高度:13.663米,总建筑面积:549.33平方米,进深到门厅柱子是17.54M.
结构体系: 框架结构,抗震设防烈度七度,屋面为现浇混凝土屋面。
结构层高:一层层高4.00米,二层层高3.30米,三层层高3.30米




本方案为简欧风格="://www.lemeizhai.com/Picture.asp?PicClassID=91&flag=y&par2=&par3=&par4=&par5=&par7=&sort=" target="_blank" title="三层">三层别墅设计方案,大厅中空,外墙配色风格偏欧式,给人高端、豪华的感觉。采光、通风都比较好,三层有阳台,也有大露台。
建筑层数:地上3层,建筑总高度:12.16米,总建筑面积:380.03平方米
结构体系: 框架结构,抗震设防烈度七度,屋面为现浇混凝土屋面。
结构层高:一层层高3.30米,二层层高3.30米、三层层高3.00米






本方案为农村="://www.lemeizhai.com/Picture.asp?PicClassID=91&flag=y&par2=&par3=&par4=&par5=&par7=&sort=" target="_blank" title="三层">三层别墅设计图,欧式风格,带大露台。如果有一天你厌倦了城市的喧嚣,可以回到乡下建一栋这样的小别墅,布局很简单,但很温馨,对一直生活在城市想回乡生活的人来说,是一个非常棒的选择。
建筑层数:地上3层,建筑总高度:12.186米,总建筑面积:371.26平方米
结构体系: 框架结构,抗震设防烈度七度,屋面为现浇混凝土屋面。
结构层高:一层层高3.60米,二层层高3.30米、三层层高3.30米
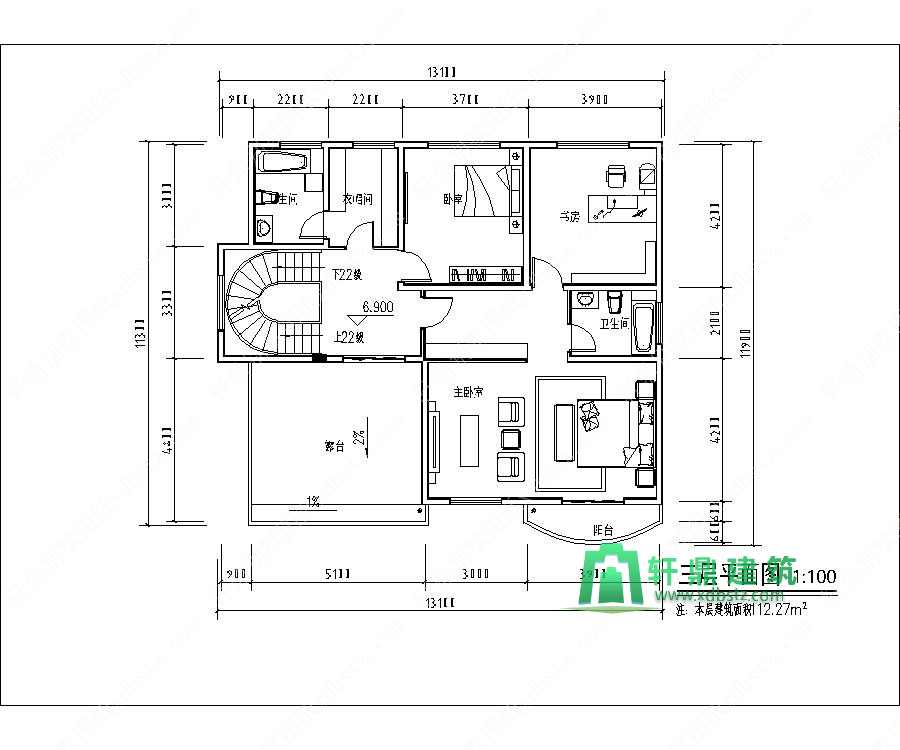
一套好的房子不是以地有多大而决定的,而是以设计决定的,好的设计不会拘泥于大小,而是在有限的空间中,拿出最好的方案。
文章出自轩鼎房屋图纸网:="://www.lemeizhai.com/Picture.asp" target="_blank" title="轩鼎">://www.lemeizhai.com