谁说现代风格的别墅不适合农村,谁说农村只有普通房子?我会告诉你乡村别墅有多漂亮,有多经济实用。好房子从来不取决于建在哪里,也不会因为风格不同而变坏。每种风格都有自己的亮点。不管是什么风格建的好,建自己风格的就是好别墅,不适合农村,只看建的好不好,适合自己,住的舒服不舒服,漂亮不漂亮。这才是我们设计的真正意义。不要担心小宅基地。面积只有100,可以盖豪宅。如果你想盖房子,你应该尽快收集图纸。不要担心小土地。好的设计可以帮你解决土地面积小的问题。定制设计是你的首选。欧式、中式、现代风格各有优势。每种风格都有不同的特点。好的设计不会因为地形而失去光彩。好的设计会根据每个人的需求而改变。要因地制宜,因人而异。这是一个好的设计师应该做和考虑的。








本方案为农村="://www.lemeizhai.com/search.asp?SearchType=Software&imageField.x=57&imageField.y=23&SearchKey=%C8%FD%B2%E3" target="_blank" title="三层">三层别墅设计图,欧式风格,带大露台。如果有一天你厌倦了城市的喧嚣,可以回到乡下建一栋这样的小别墅,布局很简单,但很温馨,对一直生活在城市想回乡生活的人来说,是一个非常棒的选择。
建筑层数:地上3层,建筑总高度:12.186米,总建筑面积:371.26平方米
结构体系: 框架结构,抗震设防烈度七度,屋面为现浇混凝土屋面。
结构层高:一层层高3.60米,二层层高3.30米、三层层高3.30米





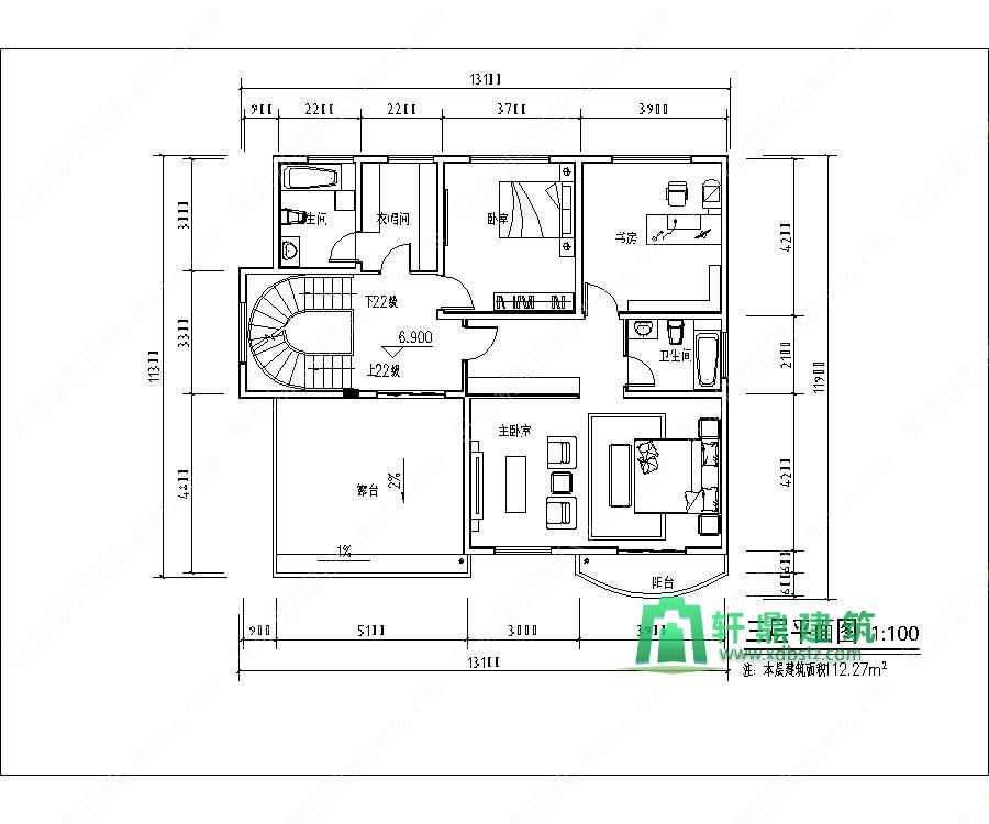
欧式="://www.lemeizhai.com/search.asp?SearchType=Software&imageField.x=0&imageField.y=0&SearchKey=%C8%FD%B2%E3%B8%B4%CA%BD" target="_blank" title="三层复式">三层复式自建房,占地面积192平方米,内部房间数量较多,外观造型新颖,配色高端大气,整体布局十分完善,可自由活动空间较大,如果您的家族所需房间数量较多,那么这是一款不错的选择。
建筑层数:地上3层,建筑总高度(到屋脊高度):12.790米,建筑面积:414.90平方米。
结构体系:框架结构,抗震设防烈度七度,屋面为现浇混凝土屋面。
楼层层高:一层层高3.6米,二层层高3.3米,三层层高3.3米。






精品欧式="://www.lemeizhai.com/Picture.asp?PicClassID=91&flag=y&par2=&par3=&par4=&par5=&par7=&sort=" target="_blank" title="三层">三层自建别墅设计图,小户型,外观精美,布局完善,造价30万左右,既美观又实用,符合现代大多数农村自建房需求!
☑ 占地尺寸:11.00m*11.10m
☑ 占地面积:118.58㎡
☑ 建筑面积:297.53㎡
☑ 建筑结构:框架结构
☑ 造价估算:30-35万






一款非常干净漂亮的三层欧式="://www.lemeizhai.com/search.asp?SearchType=Software&imageField.x=47&imageField.y=25&SearchKey=%B8%B4%CA%BD" target="_blank" title="复式">复式别墅设计图,造价40万左右,带有室内车库,配色选择非常干净的米白色,多窗设计,挑空客厅,室内采光通风情况良好,从内到外给人一种非常敞亮的感觉,自建房非常好的选择!
☑ 占地尺寸:14.64m*12.89m
☑ 占地面积:176.72㎡
☑ 建筑面积:395.29㎡
☑ 建筑结构:砖混结构
☑ 造价估算:40-45万
在农村盖房子比在城市便宜很多,也没有办法在城市定制一套完全适合自己,符合自己意愿的房子,但是在农村就不一样了。只要有一块地,想建就建。定制一套适合自己,适合自己想法的别墅,不仅便宜,更重要的是舒适,你喜欢。这是最好的房子。
文章出自轩鼎房屋图纸网:="://www.lemeizhai.com/Picture.asp" target="_blank" title="轩鼎">://www.lemeizhai.com