您好,欢迎访问轩鼎房屋图纸网,轩鼎建筑为您提供新农村房屋设计图、别墅设计图纸以及别墅定制设计与咨询服务。
 
 
  热门搜索:自建房 别墅设计 房屋设计图   
网站首页 图纸大全 定制设计 作品展示 建房图文 联系我们
一层房屋图纸
二层房屋图纸
三层房屋图纸
四层以上图纸
双拼房屋图纸
其他建筑图纸
 
 
 您的位置:首页 ->> 建房图文 ->> 经典大方的农村自建房,简约靓丽,经济适用
 
 

经典大方的农村自建房,简约靓丽,经济适用

发布时间:2021/9/17 22:19:00 点击数: 2635次 

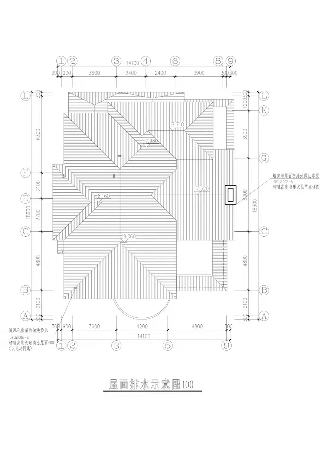
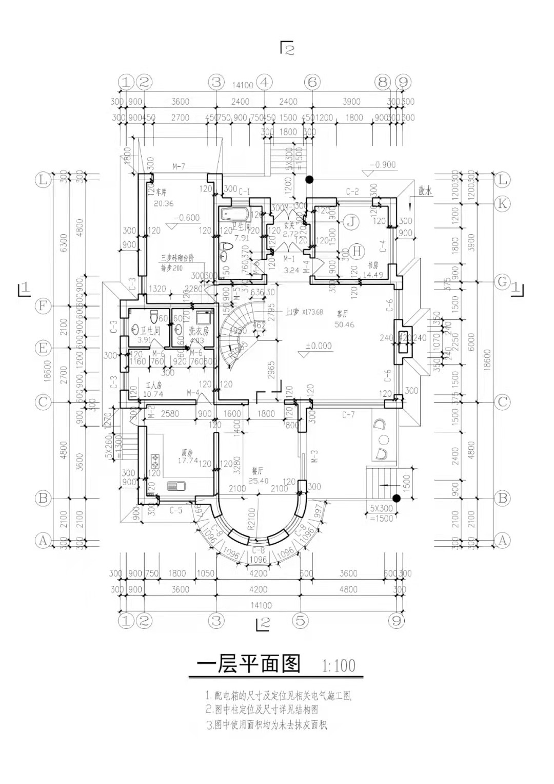
 图纸简介:本房屋总建筑面积378.18㎡,占地面积194.35㎡,开间14.1米,进深18.6米,建筑总高9.06米。









转载请注明出自轩鼎别墅设计  ://www.lemeizhai.com/index.asp



 
· 建好即可拎包入住,真好
· 农村小别墅设计方案,面积不到1...
· 回家花个三四十万给爸妈建栋小别...
· 三层别墅的设计表明,想要好的別...
· 农村房屋继承(农村宅基地怎么办...
· 农村别墅设计:心目中阅读的现代...
· 什么是水性漆(水性漆的优缺点有...
· 别墅的产权一般是多少年(别墅属...
  关于我们 网站事务 帮助中心
客服热线:400-079-6579
客服QQ:10928711 10928755 10928799
地址:山东省潍坊财富大厦1801
 

预定须知
顾客必读
配送方式

 


Copyright 2016 www.lemeizhai.com All Rights Reserved ICP备案序号:鲁ICP备2026012448号-1
轩鼎房屋图纸 电 话:0536-3385581 3385582 传 真:0536-3385581 地 址:山东省潍坊财富大厦1801


keywords:房屋设计图 房屋设计图 农村房屋设计图 农村房屋设计图 建房图文