家,不是几室几厅的数字组合,而是一家人的生活归属,所有家庭成员的精神空间。所以,家不仅要满足生活的基本功能,也要满足精神的需要,甚至一部分工作的职能。

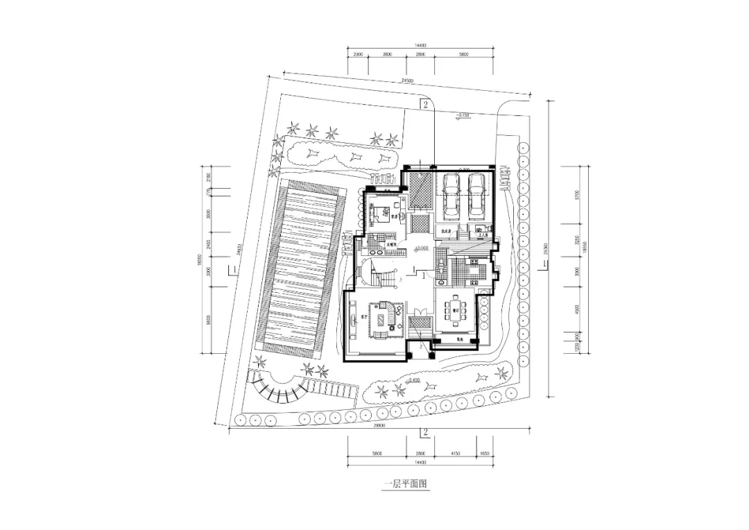
本建筑占地面积239.80㎡,东西方向14.4米,南北方向18.55米,建筑高度9.5米,建筑面积386.54㎡,户型为五房三厅五卫。
▼一层平面

本户型共有两层,1F为客厅、餐厅、厨房、车库和佣人房,一间老人房房和景观庭院,客厅面宽为5.8米,进深6.6米,保证家庭聚会空间尺度,满足一家人一起在休闲娱乐的空间;
容厅餐厅分而不离,即保证空间开敞又凸显布局合理,方正而实用;老人房设立在一层减少上下楼的颠簸,并设有衣帽间,独立卫生间,满足生活需要提高生活品质。
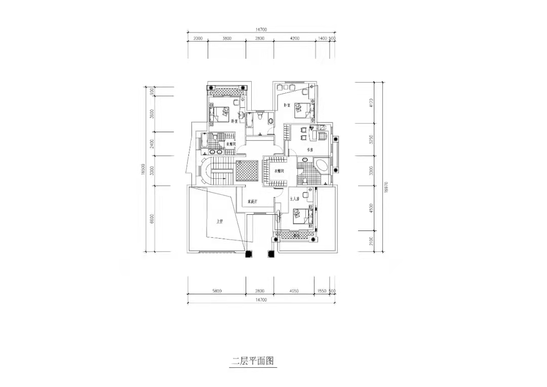
▼二层平面

二层有两间卧室和一套主人房以及家庭室,主人房套有衣帽间、卫生间和书房,满足主人生活需求,提高主人生活品质。
转载请注明出自轩鼎别墅设计 ://www.lemeizhai.com/index.asp