有的农村地区建房限制了层高,在建房上很容易受到限制。今天给大家推荐2套带地下室的别墅,建出来既豪华大气,又增加了使用面积,而且地下室功能齐全,可以设计酒窖、棋牌室、家庭影院等等。
户型一
建筑层数:地下一层,地上二层;
建筑占地面积:14.50m*20.20m=241平方米;
建筑面积:770平方米;
造价预算:78万;
建筑高度:11.1米(含屋顶)坡屋顶;
结构形式:框架结构;
▲效果图

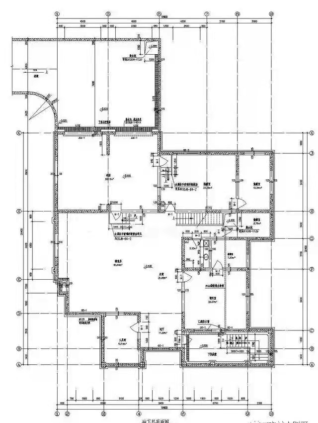
▲地下室平面图

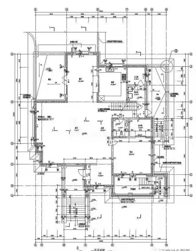
▲一层平面图

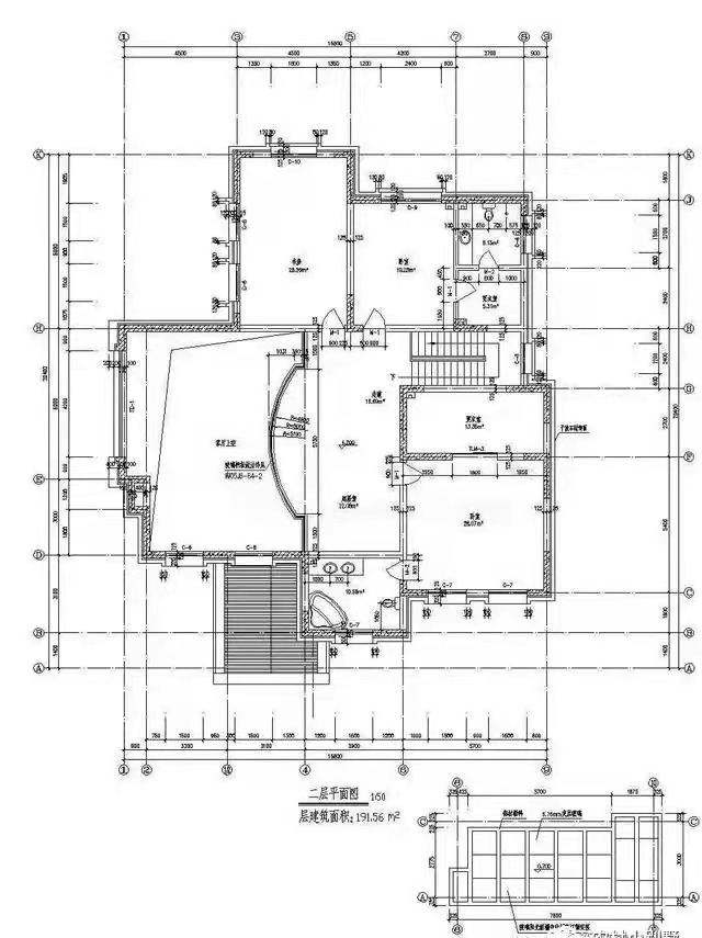
▲二层平面图

设计功能:
地下室:卧室、酒窖、储藏室、工人生活区、佣人房、卫生间、棋牌室、家庭影院、健身房、客厅、餐厅、厨房、外廊;
一层:书房、玄关、车库、卫生间、厨房、餐厅、主客厅;
二层:3个卧室、阳台、卫生间若干、书房、家庭厅、娱乐房、衣帽间
户型二
建筑占地面积:18.9米×20.4米;
建筑层数:二层;
造价预算:68万;
屋顶形式:坡屋顶;
建筑高度:12米(含屋顶);
▲效果图

▲地下室平面图

▲一层平面图

▲二层平面图

设计功能:
地下层:工具间、过厅、下沉庭院、视听室、健身房、棋牌室、走道、储藏室、卫生间、车库;
一层(:门厅、下沉庭院入口、客厅、卧室(附更衣室)、卫生间、楼梯间、平台、厨房、工人房、洗衣房、露台、餐厅;
二层:客厅上空、起居室、卧室(附卫生间和更衣室)、楼梯间、走道、卧室(附卫生间和更衣室)、书房。
户型三
建筑占地面积为:17m*12.9m;
建筑层数:三层;
造价预算:42万;
建筑高度:10.8m(含屋顶);
屋顶形式:坡屋顶;
建筑结构:砖混结构;
转载请注明出自轩鼎别墅设计:://www.lemeizhai.com/index.asp