现在很多的年轻人,为了让家人有个舒适稳定的环境,都会选择购买房屋,但是在大城市购买房屋的话,房价相对是比较高的,所以不少的年轻人也会选择回老家来建房子。在老家建房子的话,可以建造空间面积更大的房屋,而且自己居住也可以更加的舒适一点。今天推荐的两款户型,一款简欧别墅,一款现代风别墅,造价都不高,适合已经在城里买房但又想为不愿进城居住的父母改善居住环境,自己休闲度假回老家也方便自己,在乡亲们面前也有面子。
别墅:欧式="://www.lemeizhai.com/PictureShow.asp?PicID=1246&PicClassID=91" target="_self">三层别墅设计

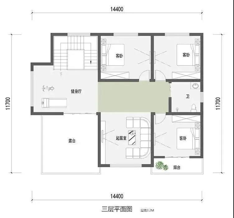
建筑参数:
占地尺寸:14.4米×11.7米
占地面积:168平方米
建筑面积:410平方米
建筑结构:框架结构
层数:3层别墅
主体预算:62万
室内布局:

一层设大堂、客厅、餐厅、厨房、门厅、2卧室、卫生间。

二层设起居室、3卧室、卫生间、2阳台。

三层设起居室、健身厅、3卧室、卫生间、阳台、露台。
别墅:现代

建筑参数:
占地尺寸:13米×11.8米
占地面积:153平方米
建筑面积:300平方米
建筑结构:砖混结构
层数:2层
主体预算:28万
室内布局:

一层设客厅、餐厅、厨房、储藏间、卧室、卫生间。

二层设2卧室、书房、衣帽间、2卫生间、阳台。
转载请注明出自轩鼎别墅设计:="://www.lemeizhai.com/index.asp" target="_self" style="color: rgb(255, 51, 0); text-decoration-line: none; font-size: 13px; font-family: 宋体; white-space: normal; background-color: rgb(255, 255, 255);">://www.lemeizhai.com/index.asp