如果有一百万你会干什么?如果是我,我会建一栋别墅在老家,小院子也安排一下。生活嘛就是要让自己开心,手里有钱就不要亏欠自己,亏欠家人。今天小编推荐一款="://www.lemeizhai.com/PictureShow.asp?PicID=1246&PicClassID=91" target="_self">独栋三层别墅,此别墅乃简欧风,南北通透、天蓝色屋顶配米色线条外墙视觉效果好。整体外观干净漂亮特别讨喜预估造价70多万

图纸信息:
开间进深:15.2X13.53米
占地面积:203平方米
建筑面积:598平方米
建筑结构:砖混结构
预估造价:72万
别墅展示:



室内布局:

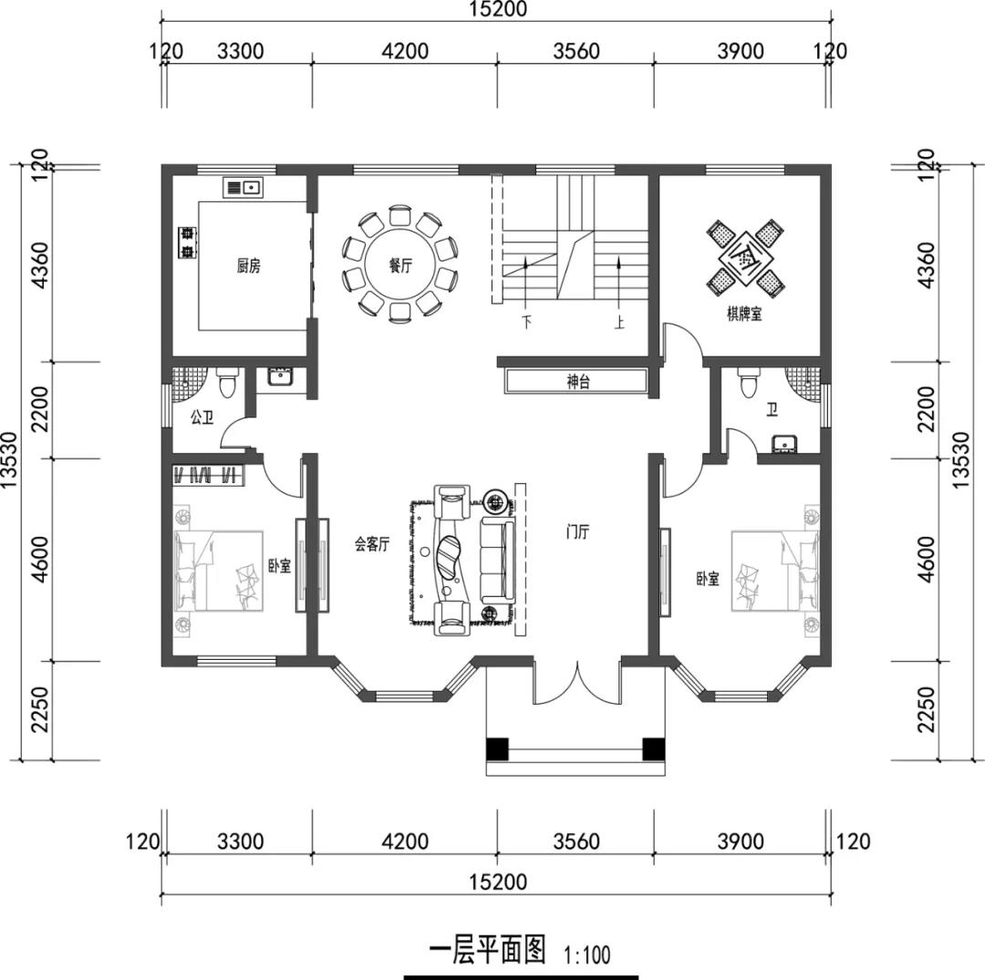
别墅一层设有门厅,客厅,餐厅,厨房,两个卧室,两个卫生间,棋牌室。

别墅二层设有起居室,三个卧室,衣帽间,三个卫生间,洗衣房,阳台。

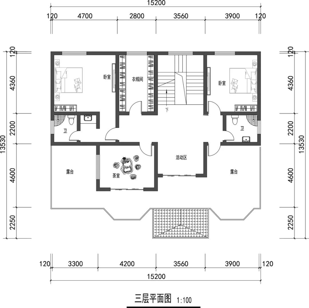
别墅三层设有活动区,茶室,两个卧室,衣帽间,两个卫生间,露台。
在请注明出自轩鼎别墅设计:="://www.lemeizhai.com/index.asp">别墅设计-乡村房子设计图-农村自建房设计图-轩鼎房屋图纸网 (lemeizhai.com)