农村别墅千千万,漂亮有特色的房子却很少。如今越来越多的人在城里有房的情况下,还是会选择回乡建一栋房,下面为大家分享1款高颜值的别墅,这套现代风别墅共二层,设计旋转楼梯,5个卧室、一个书房。在平面布局上除满足基本的居住以外,要求空间布局舒适、合理。风格上屋檐设计成坡屋顶。
效果图:

基本信息:
占地面积:约198平
建筑面积:约354平
施工面积:约500平
结构形式:砖混结构
房屋构造:5室3厅4卫
占地尺寸:13.6m×14.7m
别墅:="://www.lemeizhai.com/PictureShow.asp?PicID=633&PicClassID=88" target="_self">2层别墅设计


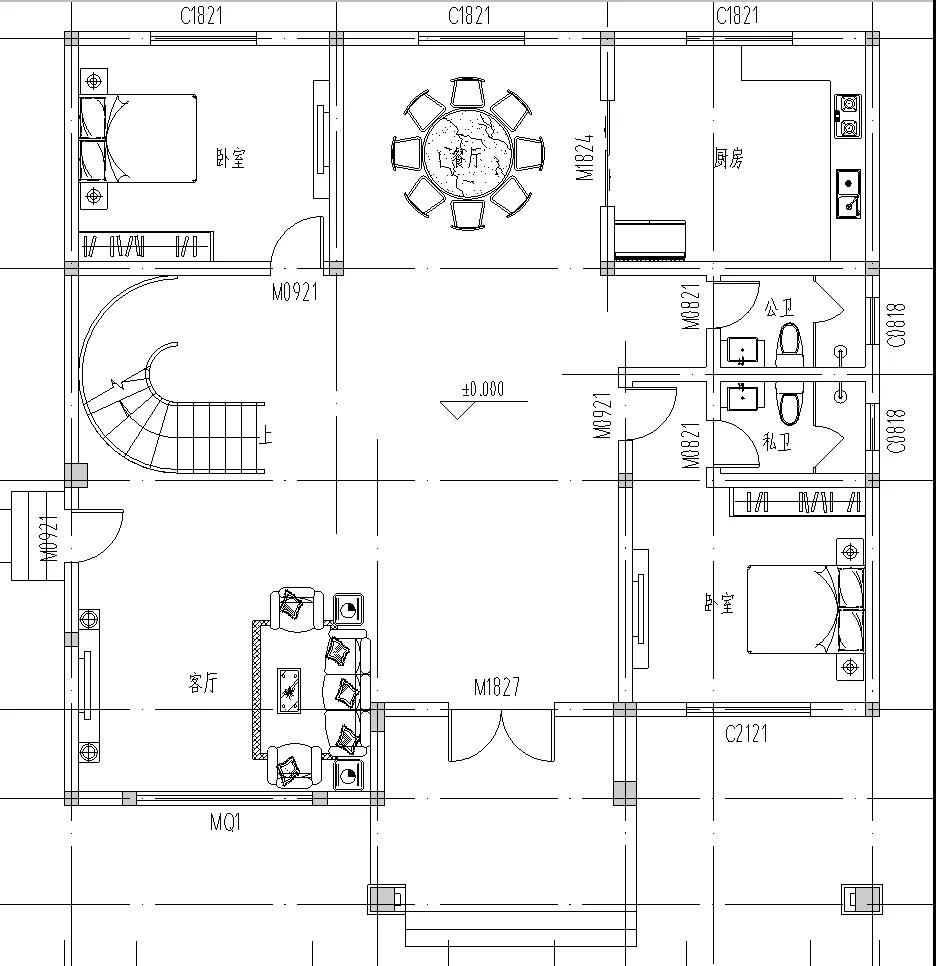
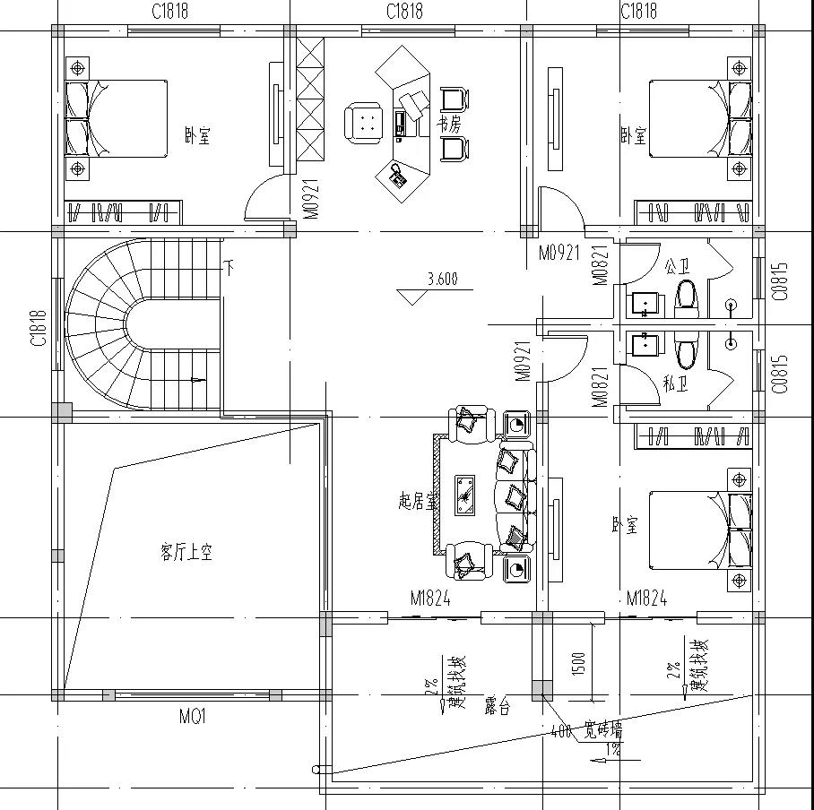
内部设计:

一楼 :客厅,卫生间2,厨房,餐厅,卧室2

二层:卧室3,卫生间2,露台,起居室
转载请注明出自轩鼎别墅设计:://www.lemeizhai.com/