海子曾说“从明天起,做个幸福的人,喂马、劈柴、周游世界;从明天起,关心粮食和蔬菜,我有一所房子,面朝大海,春暖花开。”你会不会也眷恋故乡的土,故乡的云,想在家乡建一栋房,过舒适幸福的日子?今天给大家推荐一款适合在农村建造的="://www.lemeizhai.com/PictureShow.asp?PicID=1378&PicClassID=88" target="_self">二层别墅希望你们喜欢
效果图:

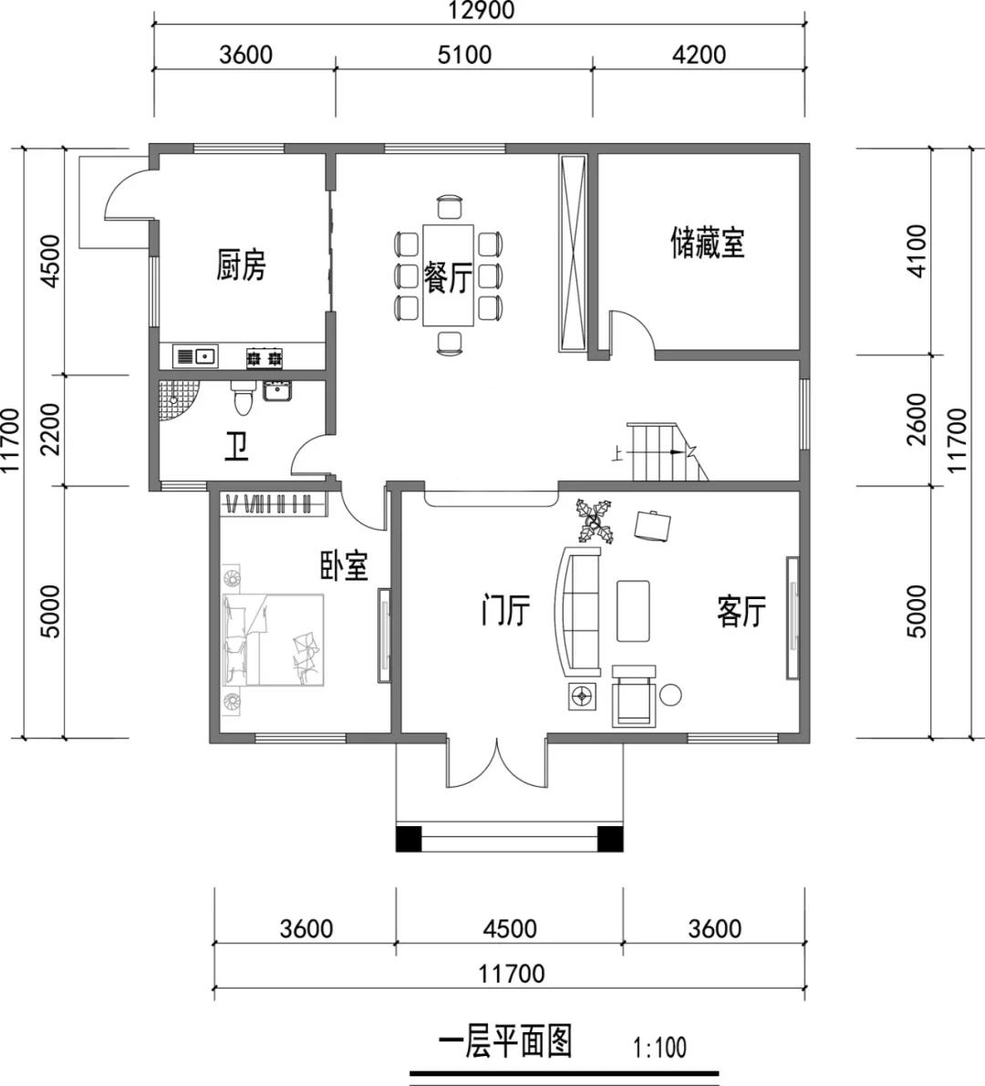
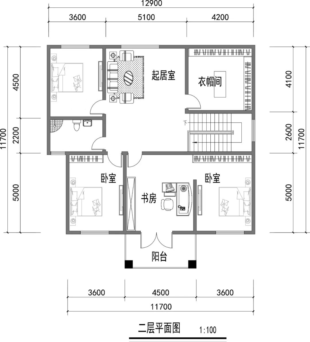
图纸信息:
开间进深:12.9X11.7米
占地面积:146平方米
建筑面积:292平方米
建筑结构:砖混结构
预估造价:36万
外观效果图:



和我们以往看的高大磅礴的别墅不同,这栋别墅小巧灵秀自带一股神韵之气,粉红色的二层装裱外墙,清新自然又舒心 。
室内布局:

一层设有门厅,客厅,餐厅,厨房,卧室,卫生间,储藏室。

二层设有起居室,书房,三个卧室,衣帽间,卫生间,阳台。
转载请注明出自轩鼎别墅设计:://www.lemeizhai.com/index.asp