从农村走出去的人,即便在城里定居了,都会回家建栋别墅,偶尔过过自在生活。闲时种种菜,养养花,这样的生活光想想就觉得惬意。这款客户定制的欧式别墅,占地方正,大小合理适中,看完内部布局设计,是你的上上之选。轻色淡调的外墙风格一看便让人心生舒适,棱角分明的立柱既在装饰灯的装饰下显得小巧温馨,又会让别墅有庄重之感,灰蓝色的屋顶颜色不会让别墅过于的“耀眼”,反而延续了低调的风格设计,灰黑色的玻璃窗同样使如此的应用。

图纸信息:
开间进深:14.4X12.2米
占地面积:175.7平方米
建筑面积:482平方米
建筑结构:砖混结构
预估造价:60万
别墅:="://www.lemeizhai.com/PictureShow.asp?PicID=1304&PicClassID=91" target="_self">3层别墅设计
外观效果图:



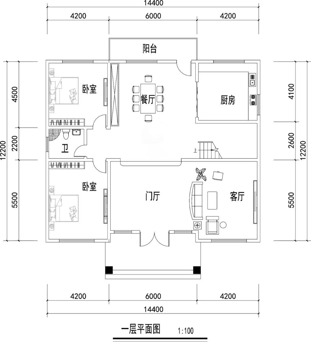
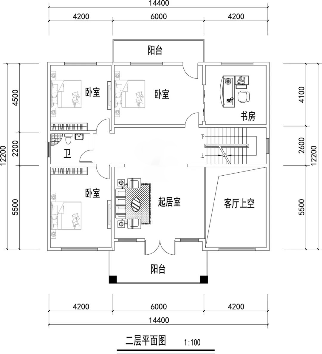
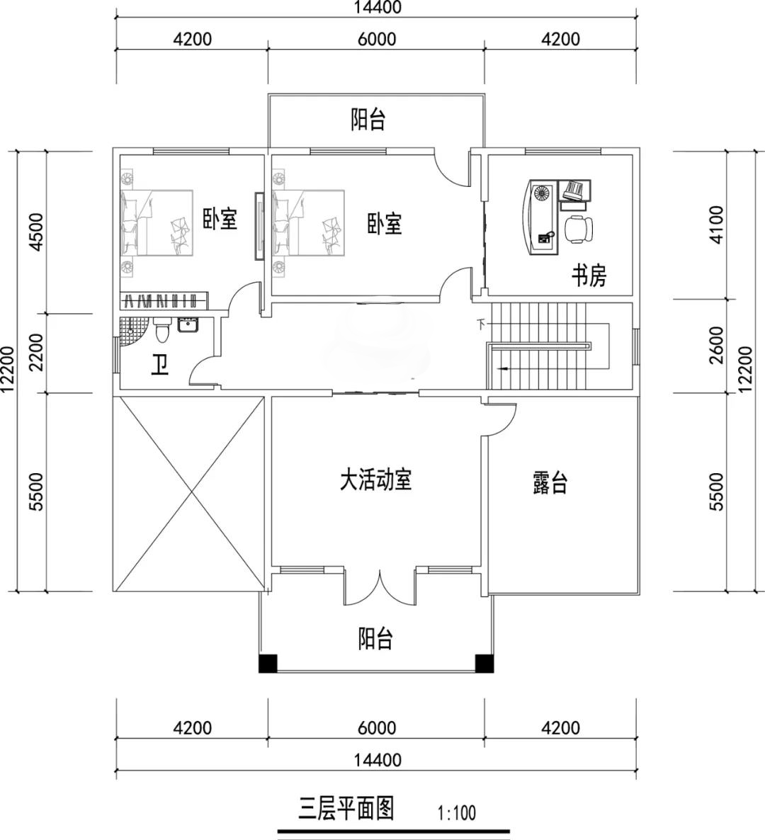
平面图:

一层设有门厅,客厅,餐厅,厨房,两个卧室,卫生间,阳台。

二层设有起居室,书房,三个卧室,两个阳台,卫生间。

三层设有活动室,书房,两个卧室,卫生间,两个阳台,露台。
转载请注明出自轩鼎别墅设计:://www.lemeizhai.com/