喜欢中式建筑,但又不想自家房子过于沉闷;喜欢现代风建筑,但又不想房子过于简单。那么现代风和新中式混搭,成功的把这些问题都解决了。就是今天推荐的这款="://www.lemeizhai.com/Picture.asp?PicClassID=91&page=6" target="_self">3层别墅设计,整栋别墅的配色上采用了传统的灰白色搭配,所以就有了中式的元素在里面,然而同时这又是一栋小三层,门窗均采用现代制作工艺的玻璃门窗,从里到外又给人一种超现代感觉,所以这栋别墅用新中式来称呼也是没错的。

图纸信息:
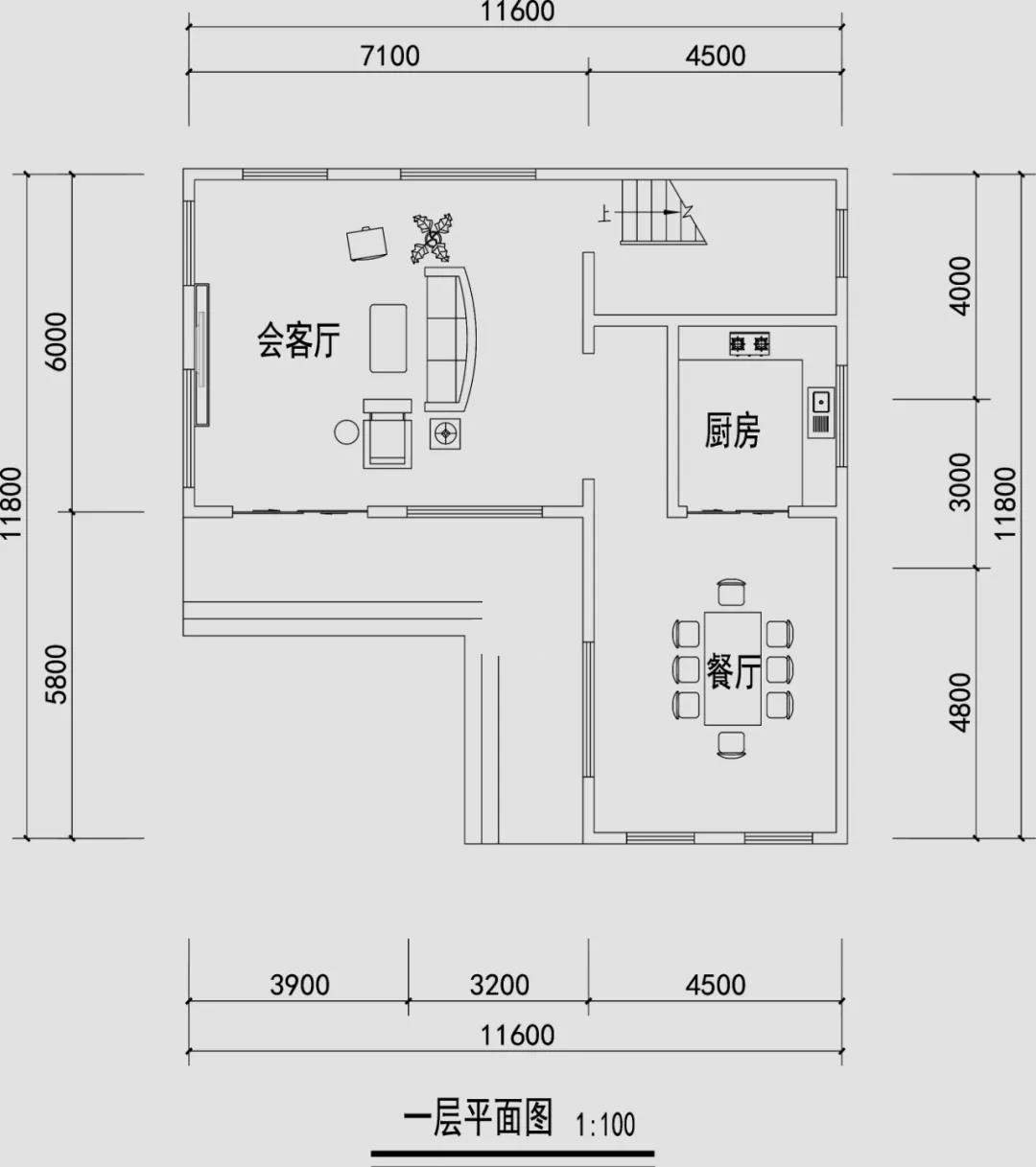
开间进深:11.6X11.8米
占地面积:136平方米
建筑面积:299平方米
建筑结构:砖混结构
预估造价:37万
外观效果图:



室内布局:

别墅一层设有客厅,餐厅,厨房。

别墅二层设有起居室,两个卧室,卫生间,阳台。

别墅三层设有茶室,卧室,卫生间,阳台,露台。
转载请注明出自轩鼎别墅设计:www.lemeizhai.com