选一农村僻静处,建一栋中式宅子,再规划一个院子,夏赏花冬赏雪,过着潇洒自在的生活。今天这款中式庭院别墅,白墙灰瓦,古色古香,建在风光秀丽的农村,再合适不过了。
效果图:

基本信息:
别墅层数: 农村二层
别墅风格: 中式="://www.lemeizhai.com/Picture.asp?PicClassID=88" target="_self">二层小别墅
占地面积:350㎡
建筑面积:484.36㎡
预估造价:62.0万
建筑结构:砖混结构
建筑占地:21m×16.7m
立面效果图:

俯视图:

有庭有院,造价62万,白墙灰瓦青石砖。多窗口设计通风方便,户型方方正正
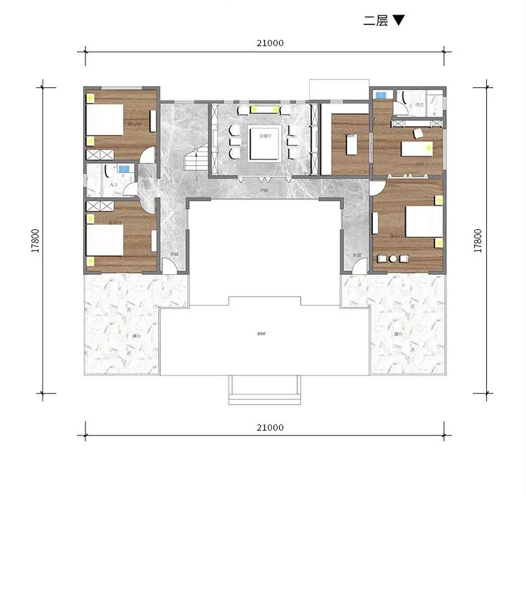
室内布局:

一层:会客厅,卧室(4),卫生间,厨房餐厅,客厅门厅,休闲厅。

二层:会客厅,卧室,露台。
转载请注明出自轩鼎别墅设计:://www.lemeizhai.com/index.asp