衣食住行是人这一辈子离不开的东西,说到住,我最羡慕那些老家在农村的企业家,他们居住要求可比我们一般的人要高,就拿我们这儿说,我们当地一个开超市的小老板不光建了一栋别墅,还有一个大庭院。不得不说宅基大就是好,有钱怎么样都行!今天这款别墅就是他选择户型,黄墙蓝瓦,专门给他父母建的。
效果图:

别墅层数: 二层别墅设计
别墅风格: 欧式="://www.lemeizhai.com/Picture.asp?type=2&par2=201-300%C6%BD%B7%BD&flag=y&par3=&par4=&par5=&PicClassID=88&sort=" target="_self">二层别墅设计
占地面积:216㎡
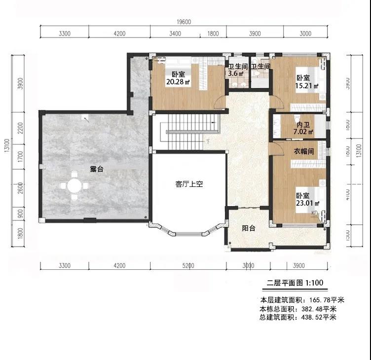
建筑面积:438.52㎡
预估造价:38.0万
建筑结构:砖混结构
建筑占地:19.6m×13.1m
俯视图:

室内布局:

一层:堂屋、客厅、餐厅(2)、棋牌室、卫生间(3)、柴火房、厨房、储物间、洗衣间、卧室(2)。棋牌室的设计无聊时可以约上牌友消遣娱乐,厨房是农村的柴火房。

二层:卧室(3)、卫生间(3)、衣帽间、阳台、露台
转载请注明出自轩鼎别墅设计:www.lemeizhai.com/