家是一个可以遮风挡雨的地方,是让我们停靠的港湾。所以选择什么样的房子非常的重要。在城里的房子大多都千篇一律,所以如今农村自建房也非常的流行。可以在有宅基地的基础之上,随意选择自己喜欢的风格。今天小编就为大家介绍一款新中式三层别墅!
效果图:

别墅层数: ="://www.lemeizhai.com/Picture.asp?PicClassID=91" target="_self">三层别墅设计
别墅风格: 新中式
占地面积:123㎡
建筑面积:410㎡
预估造价:65.6万
建筑结构:砖混结构
建筑占地:11.1m×11.1m
效果图:

新中式风格的设计不拘泥于传统的中式元素,而是继承古典的基础上融入现代的特色,将两者有机地统一起来,表达出现代人对于新的精神境界。

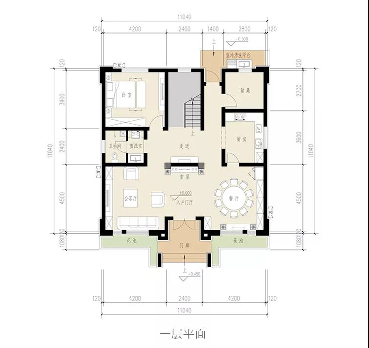
一层平面图:

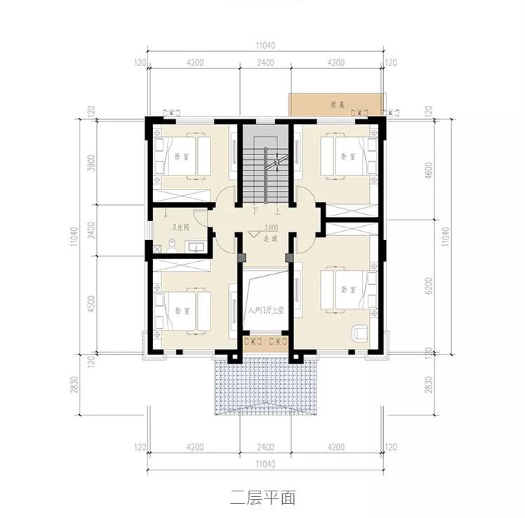
二层平面图:

三层平面图:
转载请注明出自轩鼎别墅设计:://www.lemeizhai.com/index.asp