大多数的年轻人包括中年人都是第一次建房子,推算到老家上一次建房的时间,那都是父辈们手里面的事儿了,所以是完全没有经验的,所以很多人也不知道要从哪里开始下手,所以一般人都会选择最省心省事的做法,就是选好了施工图之后,就找个施工队包出去,可能造价上会高一些,但是不需要操心,准备好资金就够了。今天给大家推荐的别墅是砖混结构,风格强调和谐对称,整体是白色有少量黑色点缀。是一款对称设计的="://www.lemeizhai.com/Picture.asp?PicClassID=91" target="_self">3层别墅设计属于现代风
效果图:


基本信息:
开间:15米
进深:10米
占地面积:150平方米
建筑面积:378.6平方米
建筑结构:砖混结构
主体造价:102万
效果图:


室内布局:

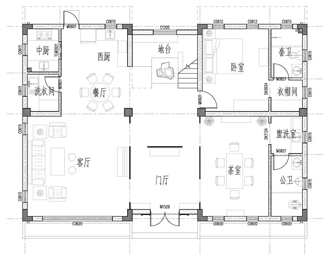
第一层布局

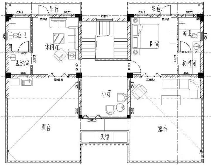
第二层布局

第三层布局
转载请注明出自轩鼎别墅设计:://www.lemeizhai.com/index.asp