很多城里人在一些事情上面总有着莫名的优越感,看不起从农村出来的人,我也不知道这种优越感是哪里来的,谁给的,现在终于可以扬眉吐气一回,因为我们农村发展的越来越好,甚至回老家建别墅的也越来越多人,一些房子气派的连那些城里人看了都眼红的很。就比如这款三层的新中式="://www.lemeizhai.com/index.asp" target="_self">农村别墅设计,豪华气派自成一体
效果图:


基本信息:
开间: 13.5米
进深 : 11.2米
占地面积 : 147.6平方米
建筑面积 : 382.8平方米
结构类型 : 砖混结构
预估造价 :48万元
多角度展示 :



豪华气派的造型外观,远远看去便羡慕不得!拥有独立大面积双车库,宽厚檐壁显得庄重有神,装饰雕刻细节用心,浪漫风趣雅致大家!玻璃护栏时尚动感,落地窗前中式元素时刻显现,镂空窗框,古典砖瓦为新中式平添淡雅之美!
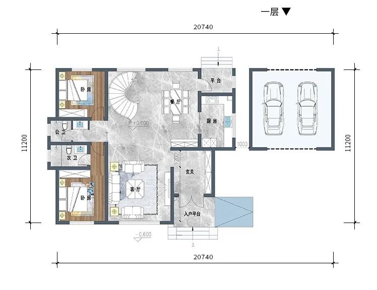
户型展示图:

别墅一层设有玄关,客厅,厨房,两个卧室,两个卫生间,车库。

别墅二层设有三个卧室,衣帽间,三个卫生间,两个露台。

别墅三层设有卧室,书房,衣帽间,卫生间,储物间,阳光房。
转载请注明出自轩鼎别墅设计:://www.lemeizhai.com/index.asp