现在农村盖房,90后逐渐成为了主力军,大家对于房子的要求也逐渐有了更深的理解。要漂亮要有型,最好是现代风格,落地窗坡屋顶就不说了,美美的大露台和车库也是一定要有的。基于这些条件,今天这套二层现代="://www.lemeizhai.com/Picture.asp?PicClassID=88" target="_self">别墅设计,就是最好的选择。
图纸效果:





基本信息:
开间:13.8米
进深:14.1米
占地面积:194平方米
建筑面积:346平方米
建筑结构:砖混结构
主体造价:59万元
室内布局:

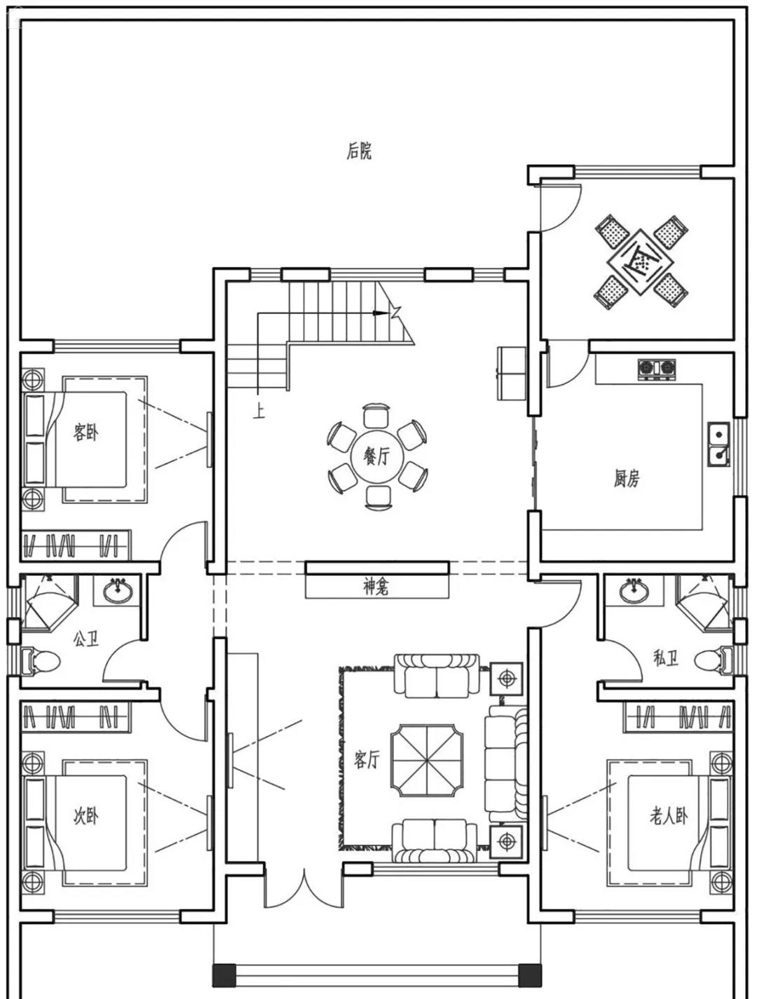
一层南北通透,前后均设入户门,连接着后院,方便进出。

二层布局更为简洁明确,起居室和餐厅挑空部分划分两侧空间,。
转载请注明出自轩鼎别墅设计:://www.lemeizhai.com/index.asp