在快节奏生活的今天,我们越来越向往能有一个宁静舒适的地方,来抚慰忙碌、紧张的心。返乡建栋别墅,享受自然赐予的美好。那么今天就给大家介绍一款现代风农村="://www.lemeizhai.com/index.asp" target="_self">别墅设计,这款别墅不论是整体还是细节都有很多与众不同之处,在农村建上这样一栋,绝对称作极品了。
图纸效果:

基本信息:
开间:11.4米
进深:12.3米
占地面积:140平方米
建筑面积:224平方米
建筑结构:砖混结构
主体造价:34万元



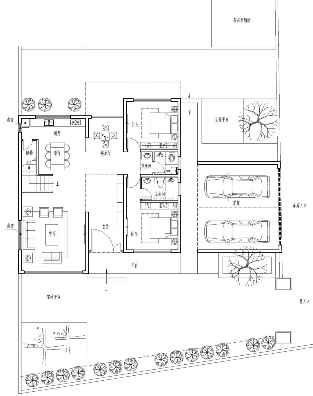
室内布局:

一层室内空间主要分为两部分,西侧公共空间和东侧起居空间。

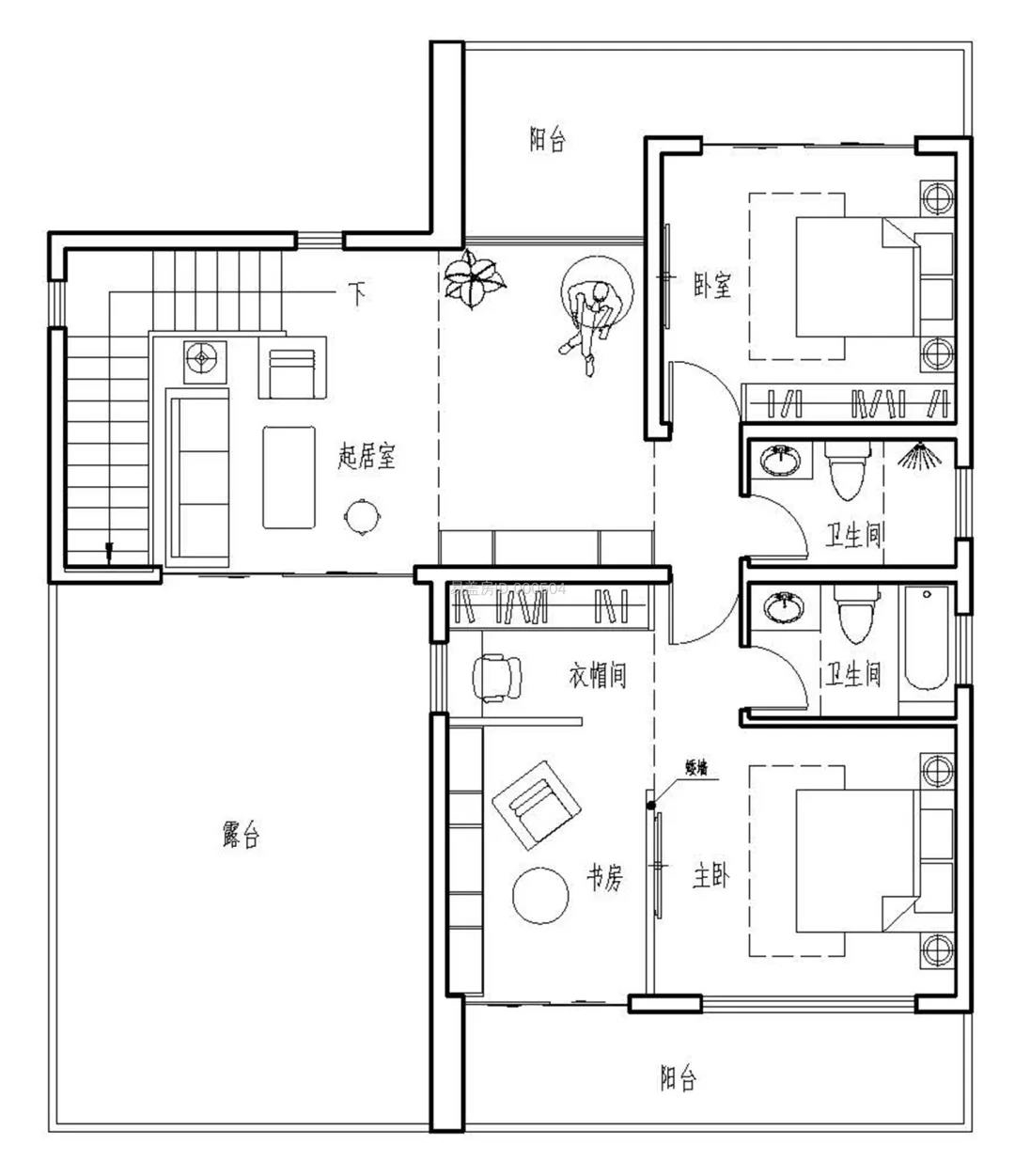
一入二层就是起居室,活动空间的保留让每间卧室之间有承接转折
转载请注明出自轩鼎别墅设计:://www.lemeizhai.com/index.asp