建房子是人生当中的一件大事,切不可马虎,一定要请最专业的施工队,选一套最适合自家的="://www.lemeizhai.com/Picture.asp" target="_self">别墅设计图,按图施工才是硬道理。不过我们看腻了一般的建筑,村里大多都是这样的房子,毫无美感。既然如此,那就来看看这栋一层新中式建筑,不管是从外观上还是从室内布局上,都让人很是喜欢。
图纸效果:

基本信息:
开间:13.8米
进深:20.5米
占地面积:282平方米
建筑面积:234平方米
建筑结构:砖混结构
主体造价:38万元

户型展示图

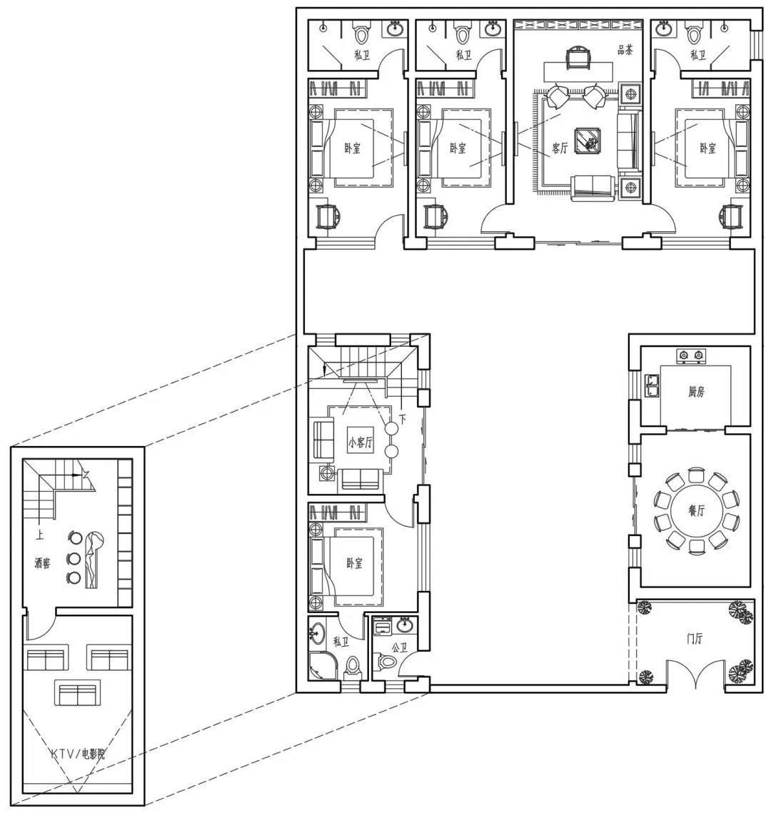
平面图:主房功能定位于日常居住,设置南北通透的大面积客厅和三间户型基本一致的卧室。
转载请注明出自轩鼎别墅设计:://www.lemeizhai.com/index.asp