建一栋别墅在农村已经不是什么稀奇事,但是想要建一栋不一样又能高端上档次,又能满足自己的日常生活的需要,又能居住的非常舒服,是非常重要的。这款现代="://www.lemeizhai.com/search.asp?SearchType=Software&imageField.x=45&imageField.y=32&SearchKey=%B6%FE%B2%E3%B0%EB" target="_self">二层半别墅设计很不错,简约却不单调,时尚又不张扬,最为低调的炫富
图纸效果:

基本信息
别墅层数:二层半
别墅风格:现代
占地面积:160.00㎡
建筑面积:306.00㎡
屋顶形式:坡屋顶
建筑结构:砖混结构
开 间:12m
进 深:15m
户型展示图

一层:客厅(2)、厨房、老人房、卫生间、餐厅。

二层:卧室3、卫生间、更衣室、阳台、露台。

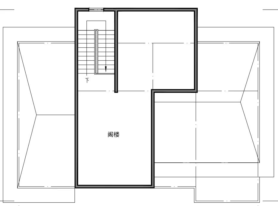
三层:阁楼。
转载请注明出自轩鼎别墅设计:://www.lemeizhai.com/index.asp