随着时代不断发展,别墅风格日渐增多,是不是选得有点目不暇接了?但总有一栋房子,让人看一眼就爱上。正如今天这款客户私人定制的现代风="://www.lemeizhai.com/Picture.asp?PicClassID=91" target="_self">别墅设计,时尚简约,清爽自然百看不厌,建栋在村里,引领乡村新潮流。
图纸效果:

基本信息
别墅层数:三层
别墅风格:现代
占地面积:145.00㎡
建筑面积:393.30㎡
屋顶形式:坡屋顶
建筑结构:砖混结构
开 间:15.6m
进 深:15m



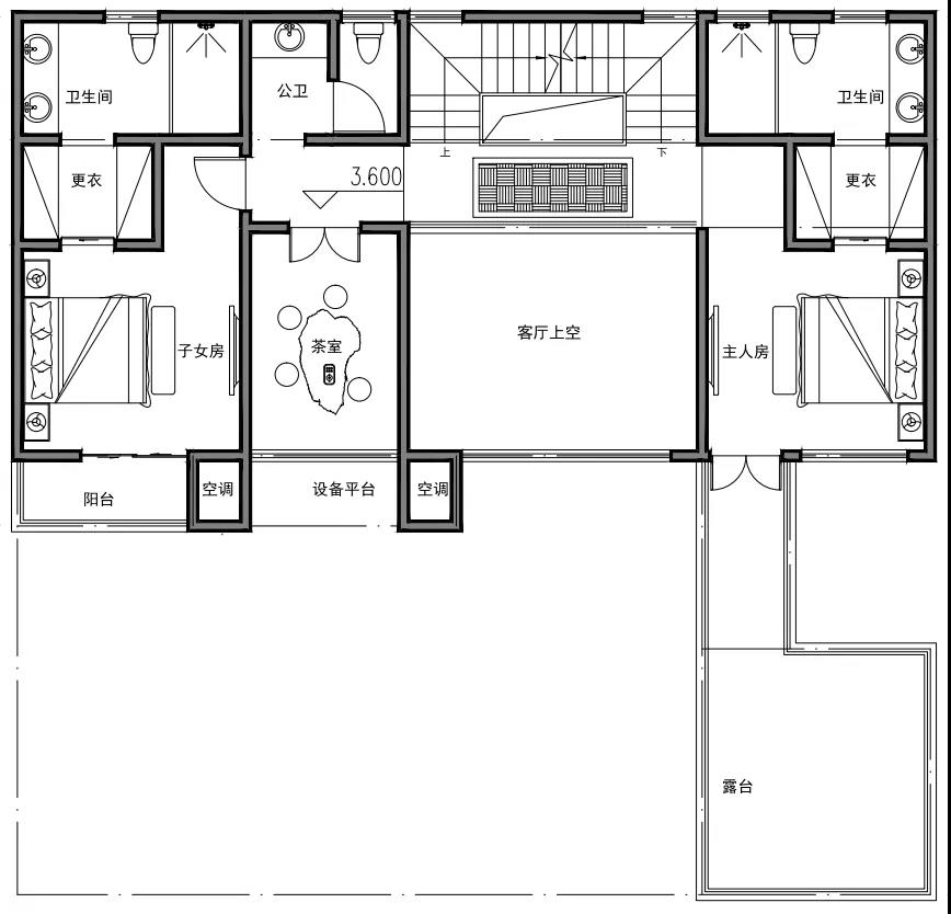
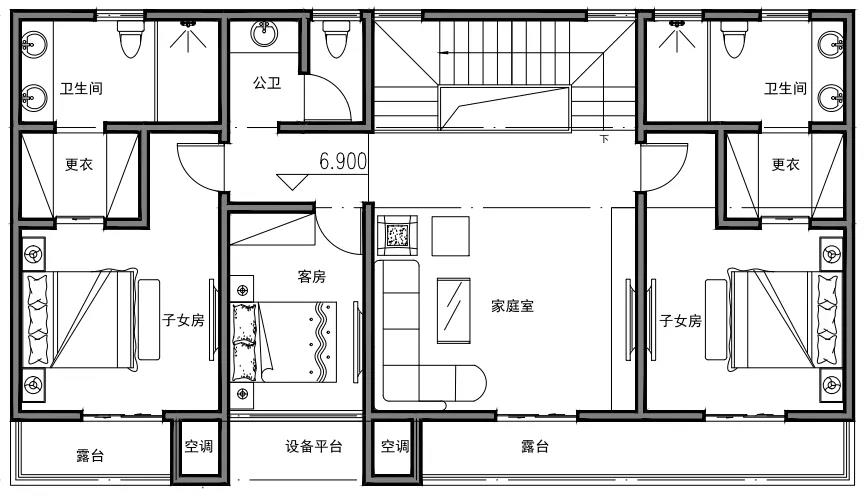
户型展示图

一层:客厅(2)、厨房、柴火房、卫生间、餐厅。

二层:卧室2、卫生间3、茶室、阳台、露台。

三层:卧室3、卫生间3、家庭室、露台。
转载请注明出自轩鼎别墅设计:://www.lemeizhai.com/index.asp