现在很多有钱成功的人士,不仅在城里有买了房,更是给自己在乡下建了栋别墅,一家人生活得其乐融融。城里一套房,乡下一栋别墅,人生圆满了。今天小编要给大家介绍的这款户型是欧式风格非常精美,="://www.lemeizhai.com/Picture.asp?PicClassID=91" target="_self" style="text-decoration: underline; font-size: 24px; font-family: 隶书, SimLi;">三层别墅设计房间多,功能多,是你建房的好选择
图纸效果:


基本信息:
建筑风格:欧式
建筑结构:其他结构
层数:三层
参考造价:83.0万元
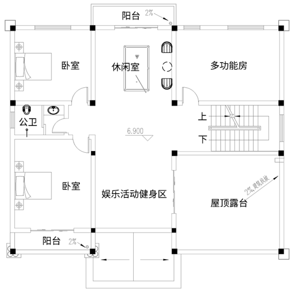
室内展示图

一层:门厅、客厅、餐厅、厨房、储藏室、卧室2、卫生间2。

二层:卧室、卫生间、衣帽间、阳台。

三层:露台、卧室、多功能房。
转载请注明出自轩鼎别墅设计:://www.lemeizhai.com/index.asp