现在的农村发展势头越发的好了,很多人家里经济宽裕了之后就想着为家人建一栋二层的农村自建房了,这样就能够好好的享受生活,而现在农村自建房不是一成不变了,也开始追求时尚了,也希望自己的房子能够美观大气,而一套好的二层农村自建房设计图就成功了一大半。这款二层别墅设计绝对是你的菜
图纸效果:

基本信息:
别墅层数:二层
别墅风格:中式
别墅占地:120.00㎡
建筑面积:240.00㎡
建筑结构:钢结构
室内展示图:

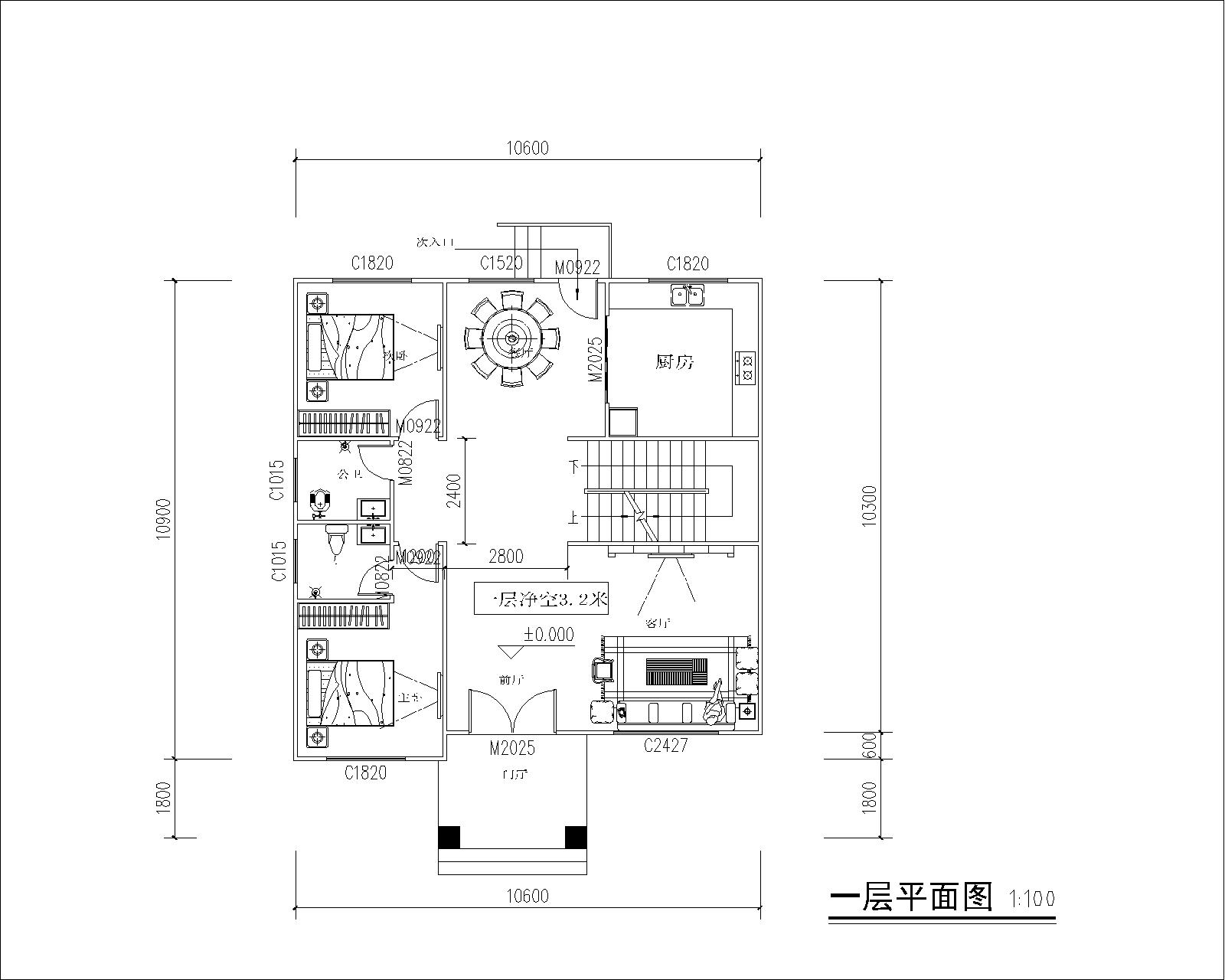
一层: 门厅、客厅、餐厅、厨房、卧室、两间卫生间。

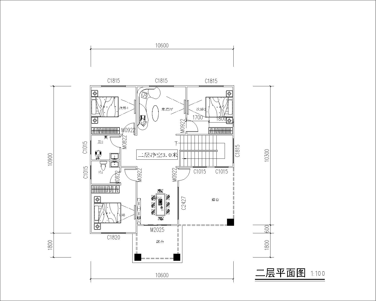
二层:卧室、两间卫
转载请注明出自轩鼎别墅设计:://www.lemeizhai.com/index.asp