返乡自建别墅已形成一股热潮,不管外面有没有房,从农村走出去的人,赚了钱都会念着回乡盖栋属于自己的别墅,一来可以改善家人的居住环境,二来自己脸上也有光。今天这款二层欧式="://www.lemeizhai.com/index.asp" target="_self" style="font-family: 楷体, 楷体_GB2312, SimKai; font-size: 36px; text-decoration: underline;">别墅设计非常适合农村自建
实际效果:


基本信息:
别墅风格: 欧式
占地面积:233㎡
开 间:14.9m
进 深:10.6m
建筑面积:436.29㎡
建筑占地:14.9m×15.9m
室内展示图:

一层平面图:堂屋、客厅、棋牌室、餐厅、厨房、卧室、公卫

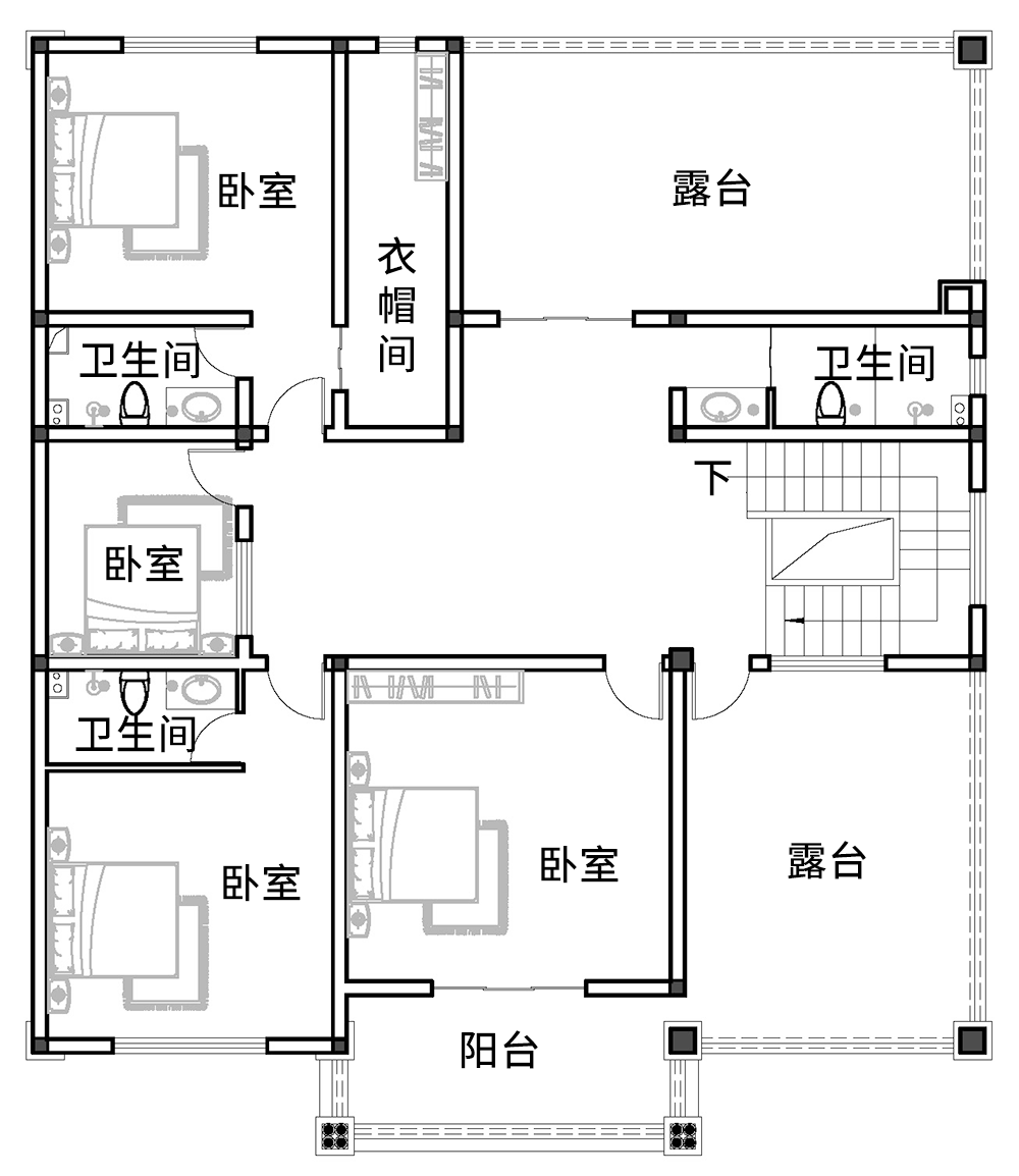
二层平面图:起居室、卧室、公卫、阳台。
转载请注明出自轩鼎别墅设计:://www.lemeizhai.com/index.asp