老家的好山好水,是在城市里羡慕不来的,所以很多在城市的老乡,心里始终惦记着老家巷口。刘先生定制设计的这款一层别="://www.lemeizhai.com/" target="_self" style="font-size: 36px; text-decoration: underline;">墅设计,,外观优美,布局实用,建一栋尽情享受乡间趣味生活
效果图:

基本信息:

别墅层数:一层
别墅风格:欧式
占地面积:123.00㎡
开 间:9.5m
进 深:13m
建筑面积:123.00㎡
屋顶形式:坡屋顶
抗震级别:大于9级
建筑结构:钢结构
室内展示图:

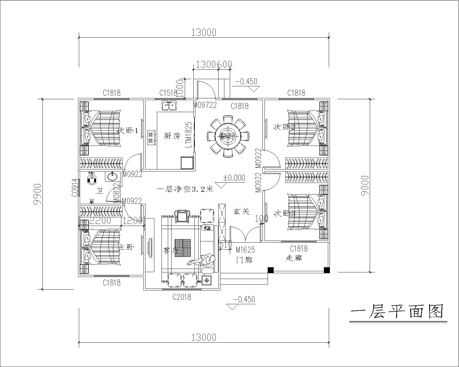
一层平面图:卧室、客厅、厨房、餐厅、卫生间。
转载请注明出自轩鼎别墅设计:://www.lemeizhai.com/index.asp