农村生活越来越美好,回乡建个小洋楼,有个小院子,吃着自己家种的新鲜蔬菜,水果都是树上现摘的,这样的生活,不仅父母满意,城里人也都很羡慕。不用建豪宅,建个二层的小别墅,父母儿女的房间都有,价格也不贵,这样的生活才是向往。今天这款="://www.lemeizhai.com/index.asp" target="_self" style="font-size: 36px; text-decoration: underline;">农村别墅设计推荐给大家
效果图:

基本信息:
别墅层数:二层
别墅风格:欧式
占地面积:121.80㎡
开 间:11.6m
进 深:10.5m
建筑面积:240.00㎡屋顶形式:坡屋顶
抗震级别:大于6级建筑结构:钢结构

室内展示图:

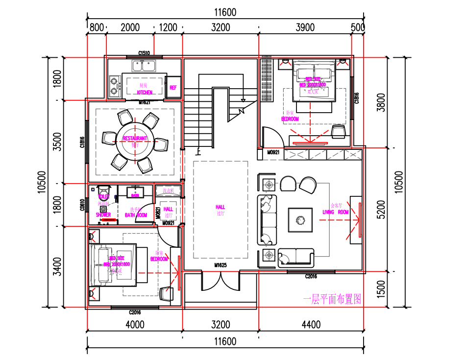
一层平面图:卧室、客厅、厨房、餐厅、卫生间。

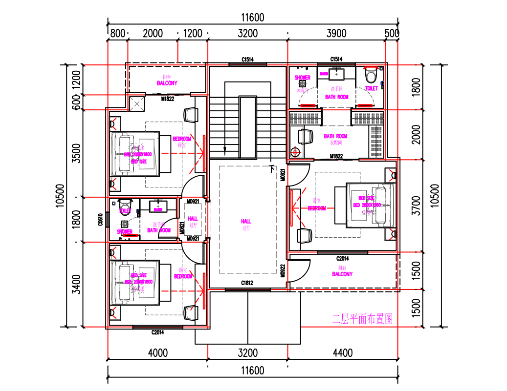
二层平面图:卧室、卫生间。
转载请注明出自轩鼎别墅设计:://www.lemeizhai.com/index.asp