有个小院子,建一栋别墅,体验农村劳作的生活, 不仅父母满意,自己也能住得舒适。 今天这款二层田园="://www.lemeizhai.com/Picture.asp?PicClassID=88" target="_self">别墅设计推荐给大家, 房间足够,价格也不贵就25万左右,一栋好房子就能体验舒适的生活。
效果图:

基本信息:
别墅层数:二层
别墅风格:欧式
占地面积:110.00㎡
开 间:10m
进 深:11m
建筑面积:220.00㎡
屋顶形式:坡屋顶
抗震级别:大于9级
建筑结构:钢结构
室内展示图:

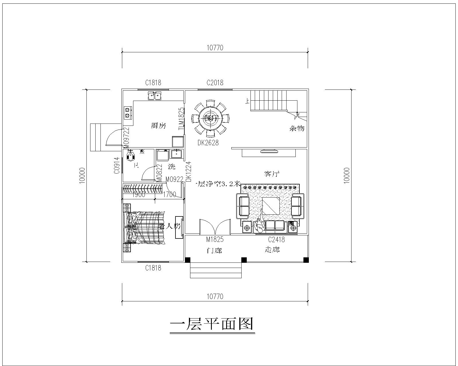
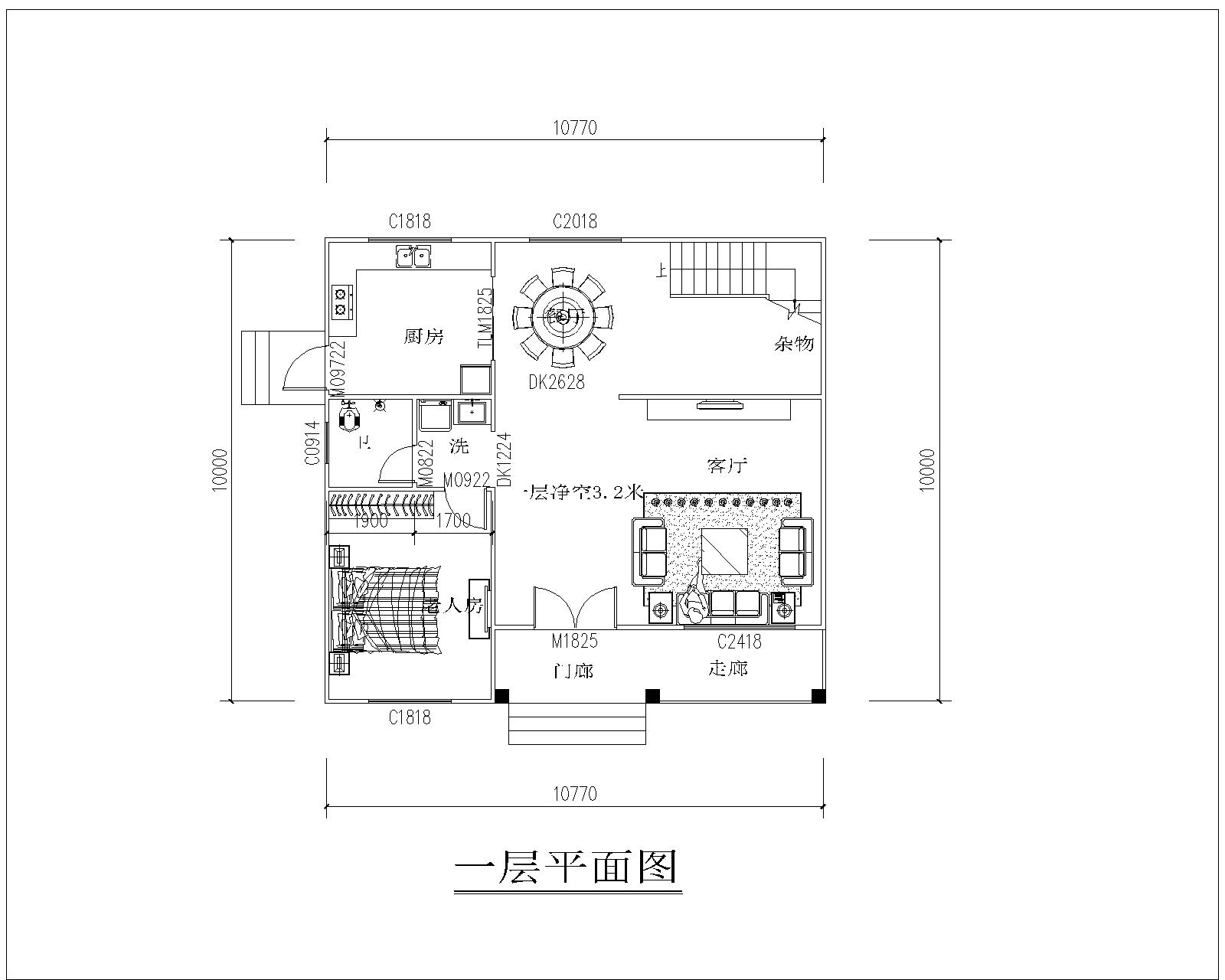
一层平面图:卧室、客厅、厨房、餐厅、卫生间、杂物间。放眼望去空间不显拥挤,一层的空间不小,客厅空间大。

二层平面图:卧室、卫生间。 多卧室设计,子女有地方睡觉。
转载请注明出自轩鼎别墅设计:://www.lemeizhai.com/index.asp