选一农村僻静处,建一栋中式宅子,再规划一个院子,夏赏花冬赏雪,过着潇洒自在的生活。这款李总私人定制的中式庭院别墅,白墙灰瓦,古色古香,建在风光秀丽的农村,再合适不过了。
效果图:

基本信息:
建筑类型:="://www.lemeizhai.com/Picture.asp?PicClassID=88" target="_self">农村自建房设计
别墅层数:二层
别墅风格:中式
占地面积:442.00㎡
开 间:17m
进 深:26m
建筑面积:363㎡
屋顶形式:坡屋顶
抗震级别:大于6级
建筑结构:砖混结构
室内展示图:


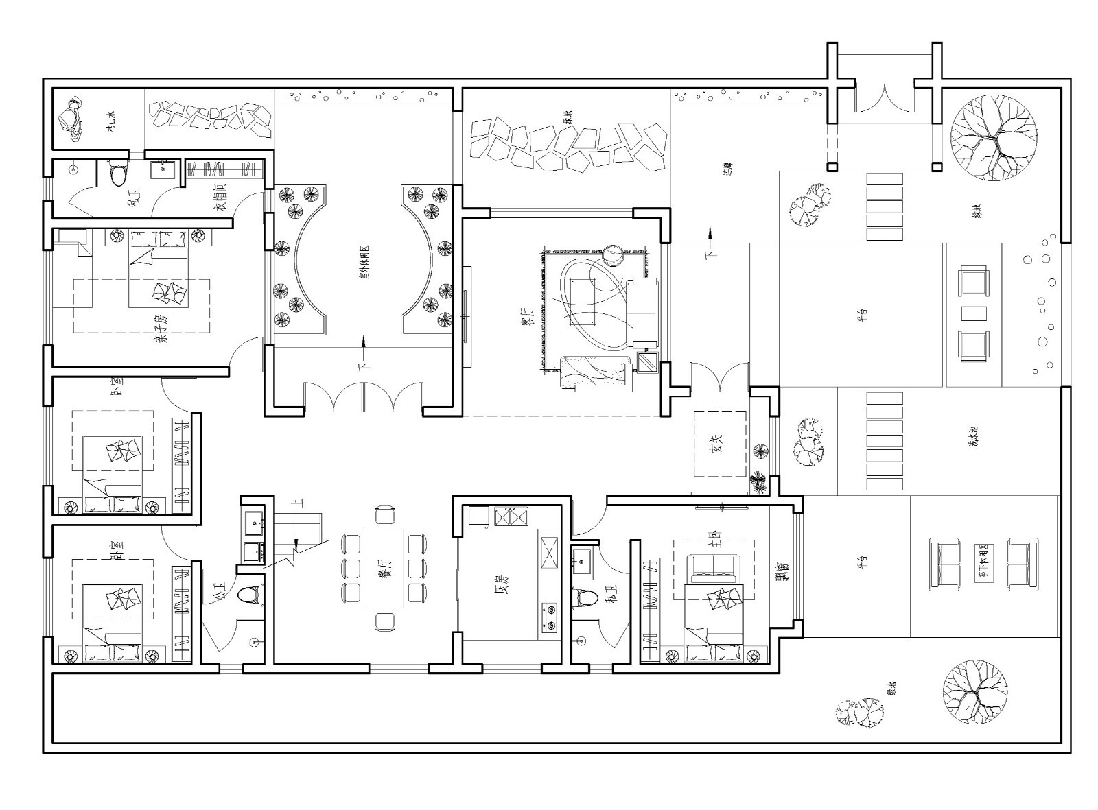
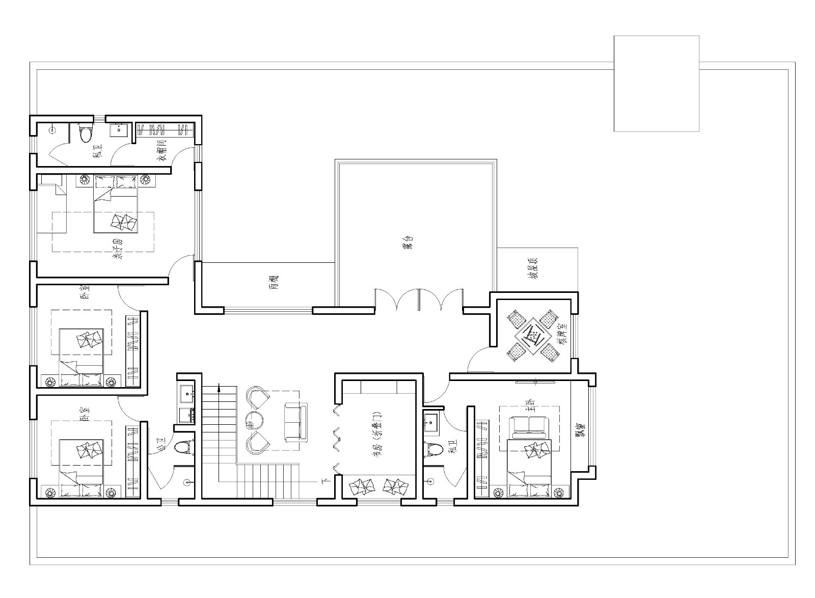
主体布置如下:庭院、玄关、客厅、厨房、主卧 衣帽间、厕所、棋牌室露台。
转载请注明出自轩鼎别墅设计:://www.lemeizhai.com/index.asp