钢结构别墅的优缺点,看完你就知道怎么选了!钢结构的优点:材料环保、寿命高、比传统房屋多12%使用面积,抗风性可达16级,建造速度快,美观且保温和隔音性达到4星级酒店的水准。缺点:团队要求高:1要有熟练使用冷弯薄壁型钢设计软件的设计师团队,还要有一支有资质、会识图、懂安装的施工队伍。2不能私自更改房屋结构.3.短期内建房造价略高于砖混。4.建筑层高有限。5.钢别墅生产企业或经营性公司,质量鱼龙混杂,价格参差不齐。优缺点都说完了,来看看今天这款钢结构别墅吧
效果图:



基本信息:
建筑类型:="://www.lemeizhai.com/index.asp" target="_self">农村自建房设计
别墅风格:中式
占地面积:192.00㎡
开 间:12m
进 深:16m
建筑面积:319㎡
屋顶形式:坡屋顶
抗震级别:大于6级
建筑结构:钢结构
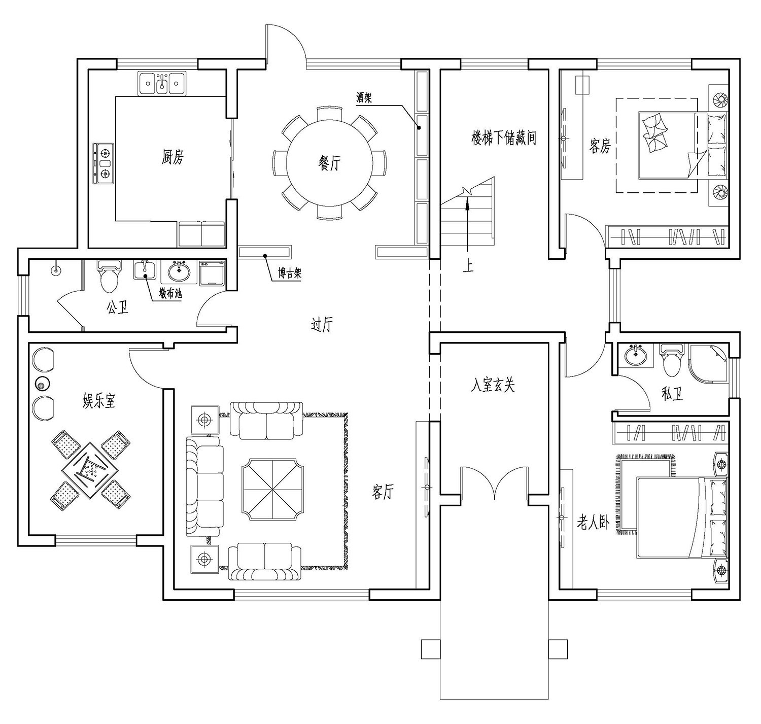
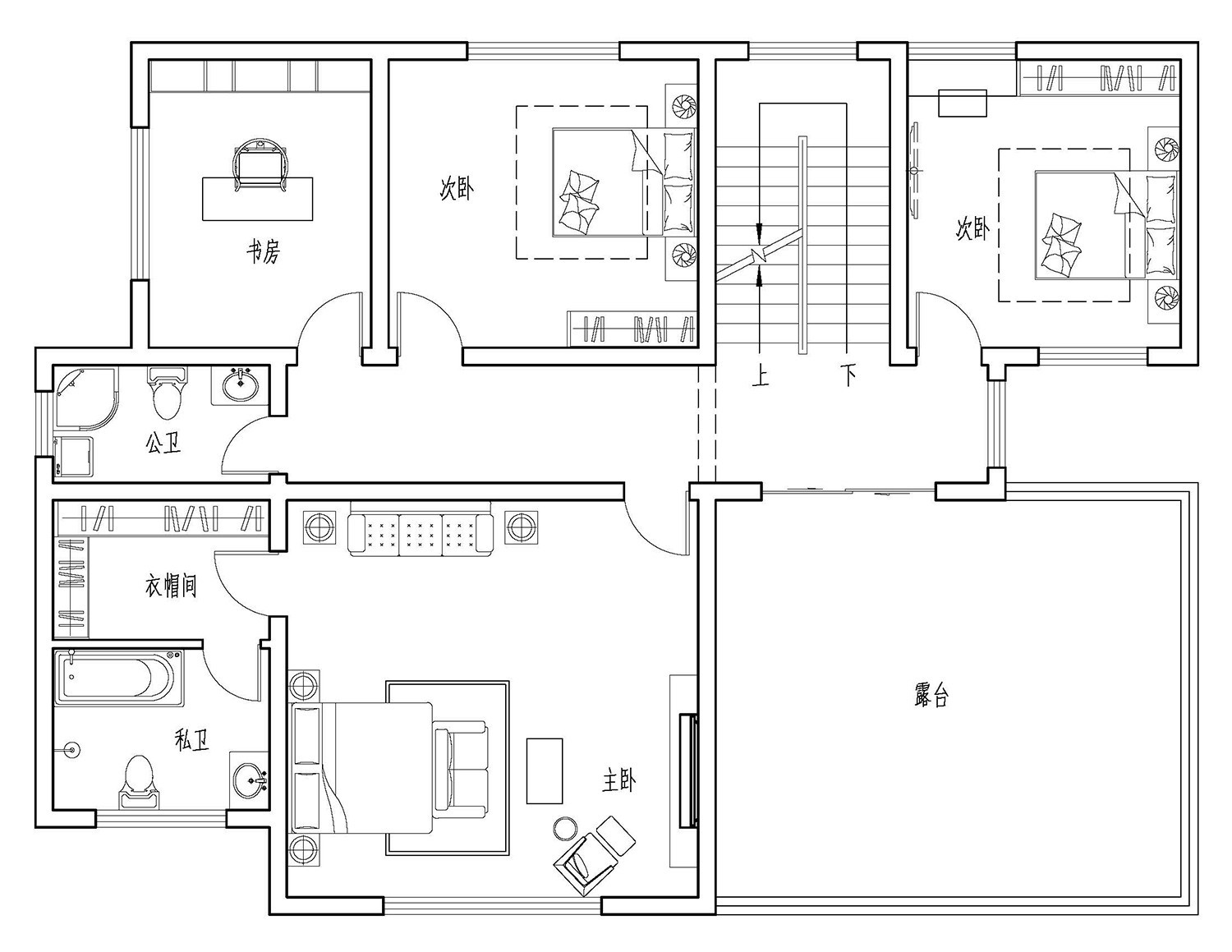
室内展示图:


主体布置如下:、玄关、客厅、厨房、主卧 衣帽间、厕所、娱乐室、露台、书房。
转载请注明出自轩鼎别墅设计:://www.lemeizhai.com/index.asp