但是如果宅基地有限,本来宅基地就小,兄弟两个一分,面积更小了,只能建个小户型。不如兄弟两个合起来建双拼别墅,建出来美观大气,又经济实用。今天给大家推荐的这款="://www.lemeizhai.com/Picture.asp?PicClassID=97" target="_self" style="font-size: 36px; text-decoration: underline;">双拼别墅设计,经典雅致,兄弟合建一定会成为当地的一大特色。
效果图:



基本信息:
别墅风格:双拼别墅设计
别墅层数:二层
占地面积:252.70㎡
开 间:21.4m
进 深:13.8m
建筑面积:599.90㎡
屋顶形式:坡屋顶
抗震级别:大于6级
建筑结构:砖混结构
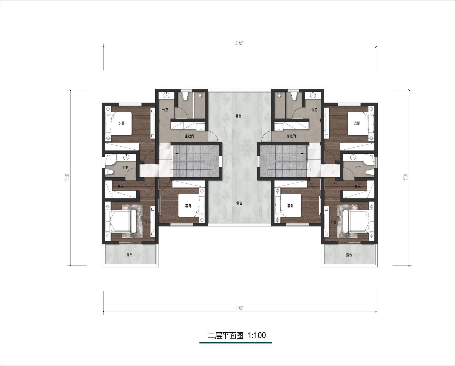
室内展示图:


主体布置如下:、玄关、客厅、厨房、主卧 、厕所、衣帽间、露台、书房。
转载请注明出自轩鼎别墅设计:://www.lemeizhai.com/index.asp