在城市里待久了,回到农村,抬头看看天空,日出日落,夕阳西下,小桥流水,鸡鸣狗吠,才知道生活真的可以如此宁静和美好。这款现代风="://www.lemeizhai.com/Picture.asp?PicClassID=88" target="_self" style="font-size: 20px; text-decoration: underline;">别墅设计,占地方正,外观简约时尚,建了绝对值。
效果图:
基本信息:
别墅层数:二层
别墅风格:现代
占地面积:117.45㎡
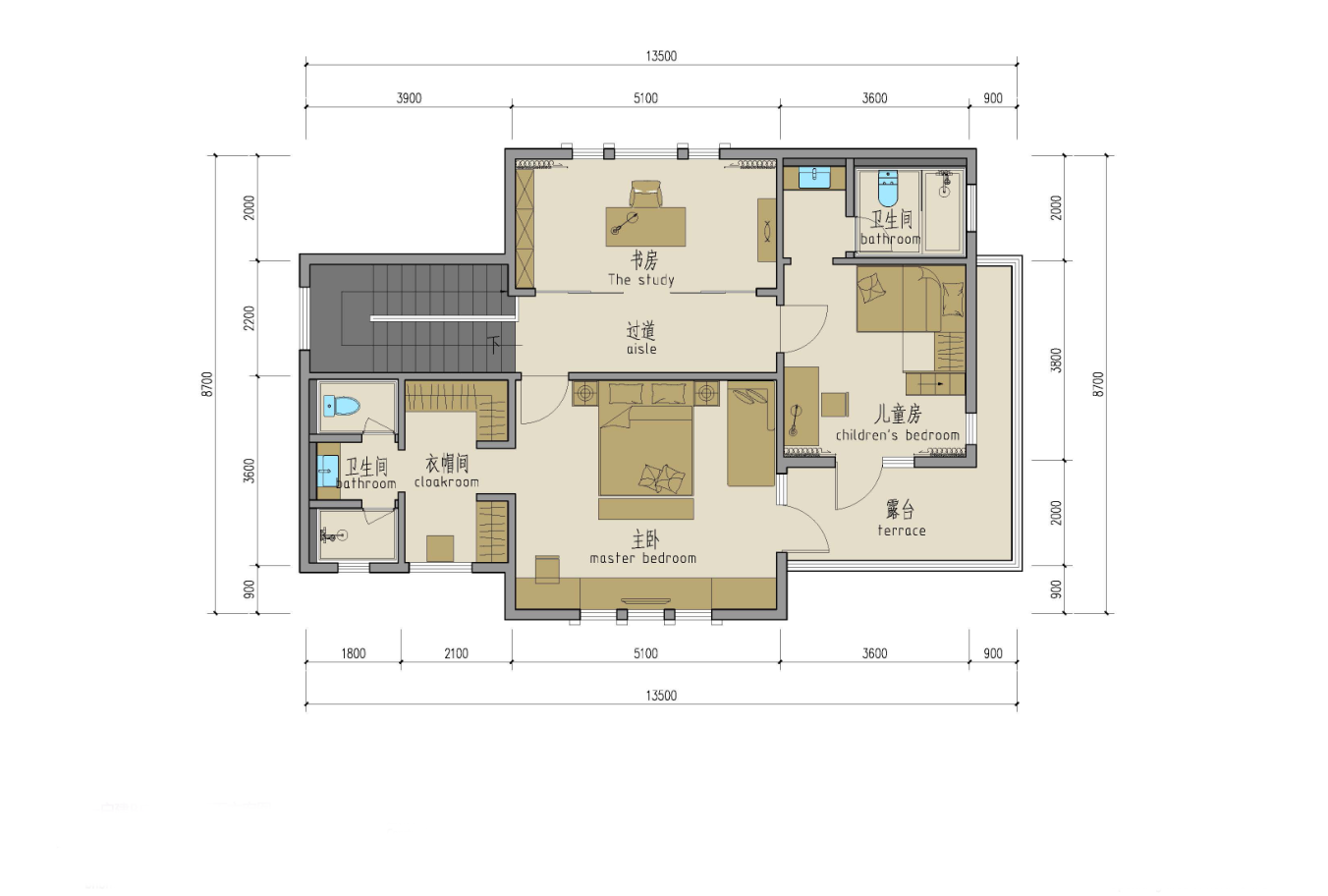
开 间:13.5m
进 深:8.7m
建筑面积:201.78㎡
屋顶形式:坡屋顶
抗震级别:大于6级
建筑结构:钢结构
室内展示图:


主体布置如下:门厅、 客厅、厨房、餐厅、主卧 、厕所、衣帽间、露台。
转载请注明出自轩鼎别墅设计:://www.lemeizhai.com/index.asp