现在农村盖房,90后逐渐成为了主力军,大家对于房子的要求也逐渐有了更深的理解。要漂亮要有型,最好是现代风格,落地窗坡屋顶就不说了,美美的大露台和车库也是一定要有的。基于这些条件,今天这款="://www.lemeizhai.com/Picture.asp?PicClassID=88" target="_self" style="font-size: 20px; text-decoration: underline;">二层别墅设计,就是最好的选择。
效果图:


基本信息:
别墅层数:二层
别墅风格:现代
占地面积:201.78㎡
开间:11.4m
进深:17.7m
建筑面积:275㎡
屋顶形式:坡屋顶
抗震级别:大于6级
建筑结构:轻钢结构
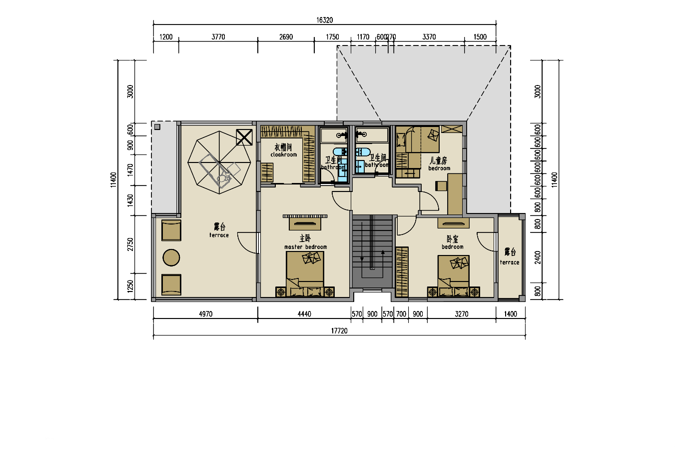
室内展示图:


主体布置如下:门厅、 客厅、厨房、餐厅、主卧 、厕所、衣帽间、露台、车库。
转载请注明出自轩鼎别墅设计:://www.lemeizhai.com/index.asp