传统中式庭院,用现代人的审美和眼光来弘扬古典文化,将两者完美融合,低调地演绎出了空间的不俗魅力。我们的东方建筑美学,早已在国际舞台上绽放光芒。这款客户定制的二层中式="://www.lemeizhai.com/Picture.asp?PicClassID=88" target="_self" style="font-size: 20px; text-decoration: underline;">别墅设计,采用结构不对称设计,外观低调不张扬,35万建一栋,美出新高度。
效果图:


基本信息:
别墅风格:中式
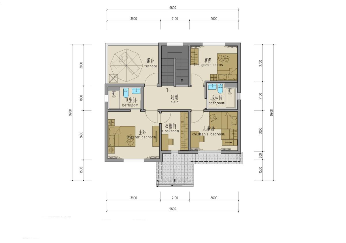
占地面积:95.04㎡
开 间:9.9m
进 深:9.6m
建筑面积:163.78㎡
屋顶形式:坡屋顶
抗震级别:大于6级
建筑结构:轻钢结构
室内展示图:

主体布置如下:门厅、 客厅、厨房、餐厅、主卧 、厕所、衣帽间、露台、杂物间。

转载请注明出自轩鼎别墅设计:://www.lemeizhai.com/index.asp