高端欧式三层复式="://www.lemeizhai.com/" target="_self" style="text-decoration: underline; font-family: 楷体, 楷体_GB2312, SimKai; font-size: 20px;">别墅设计图,奢华大气,给人一种十分贵气的感觉,因为外观十分精美,所以此款设计在装修上的花费比普通别墅略高一点,框架结构,抗震性能良好,如果您想减少建房成本,也不妨考虑一下砖混和轻钢结构的,会在建房成本减少10-15万的造价,也是不错的选择呢。
效果图:

基本信息:
墅层数: 三层
别墅风格: 欧式
占地面积:155㎡
开 间:14.3m
进 深:10.9m
建筑占地:14.3m×10.9m
建筑面积:349.35㎡
预估造价:56.0万
建筑结构:砖混结构


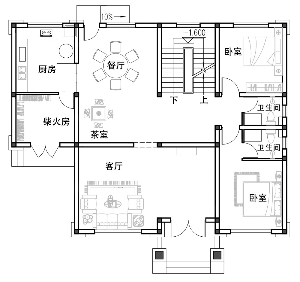
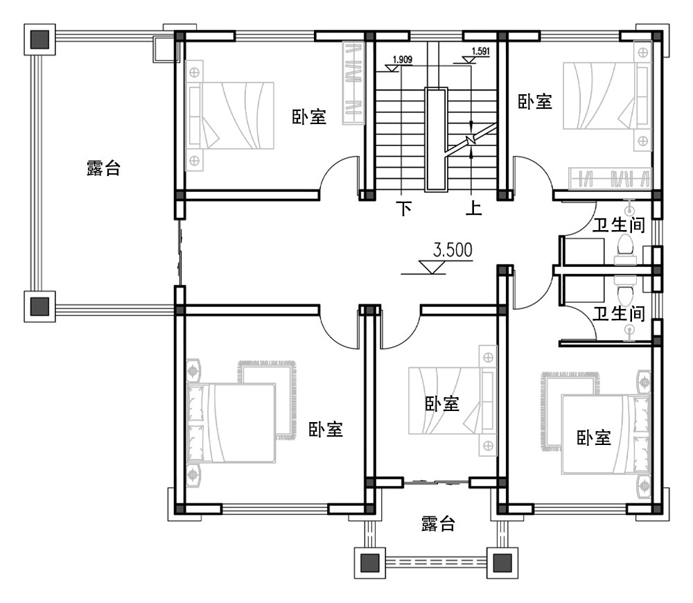
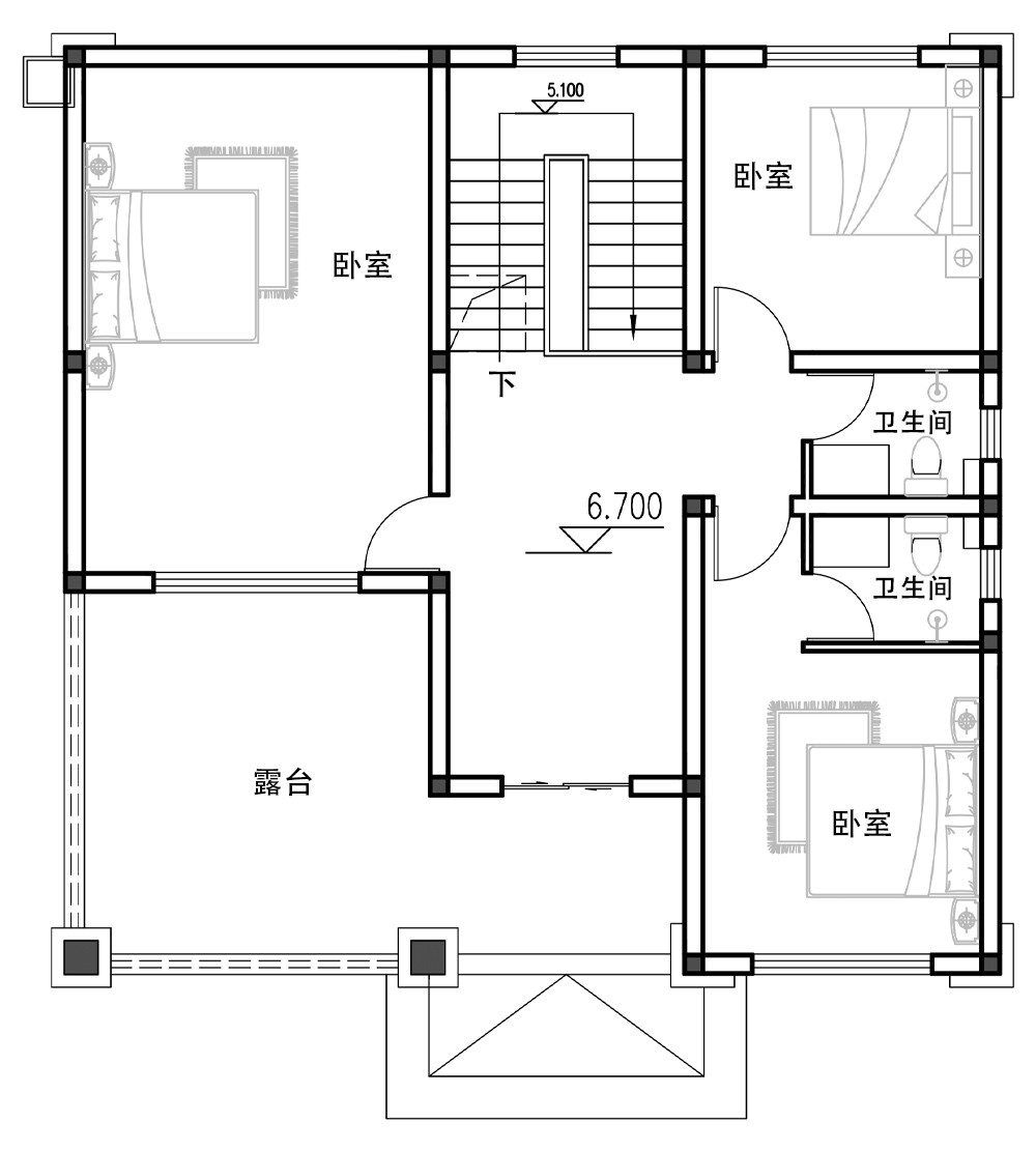
室内展示图:

主体布置如下:玄关、客厅、餐厅、厨房、卫生间、卧室、柴火房、露台。


转载请注明出自轩鼎别墅设计:://www.lemeizhai.com/index.asp