回农村建房,越来越多的人不再满足于建成一个简单的遮风避雨的居所。如今回乡自建房更多是一种享受,一种情怀,享受建房的过程,享受建房后一家人的喜悦,希望在生活富足以后能够更好的享受生活。这款是张总定制的="://www.lemeizhai.com/" target="_self">别墅设计,一辈子建一栋房
效果图:

基本信息:
别墅风格: 田园
占地面积:90㎡
建筑占地:15m×6m
预估造价:15.0万
建筑结构:砖混结构

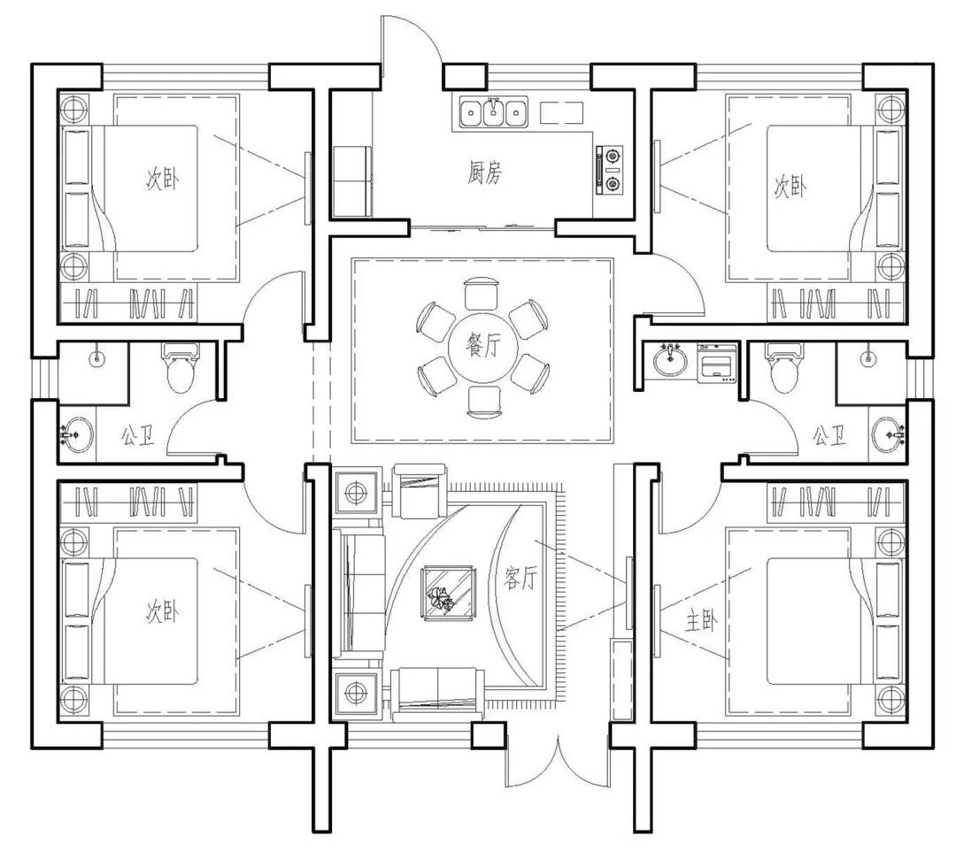
室内展示图:

主体功能:客厅、厨房、餐厅、卫生间、卧室。
转载请注明出自轩鼎别墅设计:://www.lemeizhai.com/index.asp