虽然现在很多人在农村建别墅,但很少有="://www.lemeizhai.com/Picture.asp?PicClassID=94" target="_self">别墅设计商铺。这款独有一层设有商铺,如果在家还想做些小小生意,一边享受着,小日子也很惬意,还可以和亲戚之间合伙做商 。其实我有一个梦想就是,和自己心爱的人,做着自己的小生意,生活小滋小润的。
效果图:

基本信息:
别墅层数: 四层
别墅风格: 现代
占地面积:147㎡
开 间:14.1m
进 深:10.4m
建筑占地:14.1m×10.4m
建筑面积:613.37㎡
预估造价:79.8万
建筑结构:框架结构


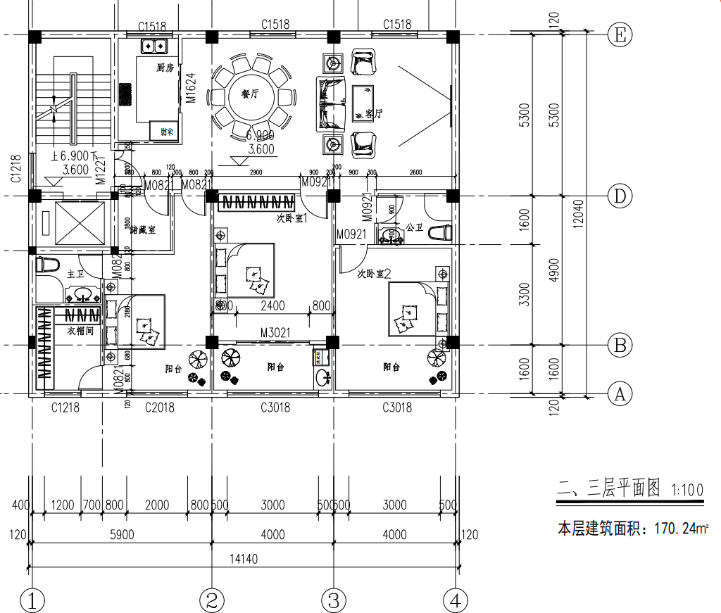
室内展示图:

总体设计:楼高四层,一层有商铺电梯、2、3、4层布局相当,4层有露台。有卧室

室内布局有卧室、卫生间、储藏间、衣帽间、厨房、餐厅、阳台

转载请注明出自轩鼎别墅设计:://www.lemeizhai.com/index.asp