现在农村的生活条件越来越好,更多人愿意在农村生活、养老,那么建一栋漂亮、舒适又有个性的别墅就非常重要,一栋好的别墅不仅是外观好看,内部布局也要实用、合理。今天小编给大家推荐一款超级豪华的="://www.lemeizhai.com/Picture.asp?PicClassID=94" target="_self" style="font-size: 24px; text-decoration: underline;">农村自建别墅设计,奢华大气的外观,布局也非常实用,非常方便。我们一起来看看吧!
效果图:

基本信息:
别墅层数: 五层
别墅风格: 新中式
占地面积:173㎡
开 间:14m
进 深:14m
建筑占地:14m×14m
建筑面积:837㎡
预估造价:129.0万
建筑结构:框架结构


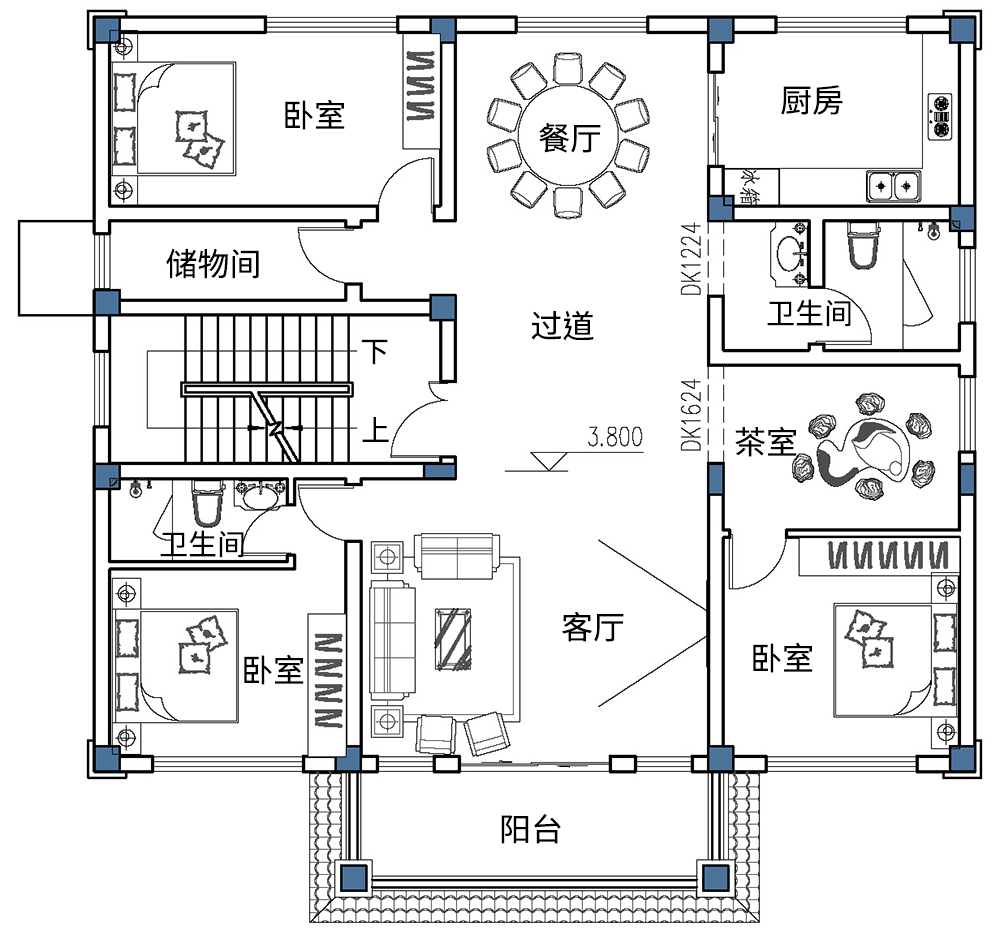
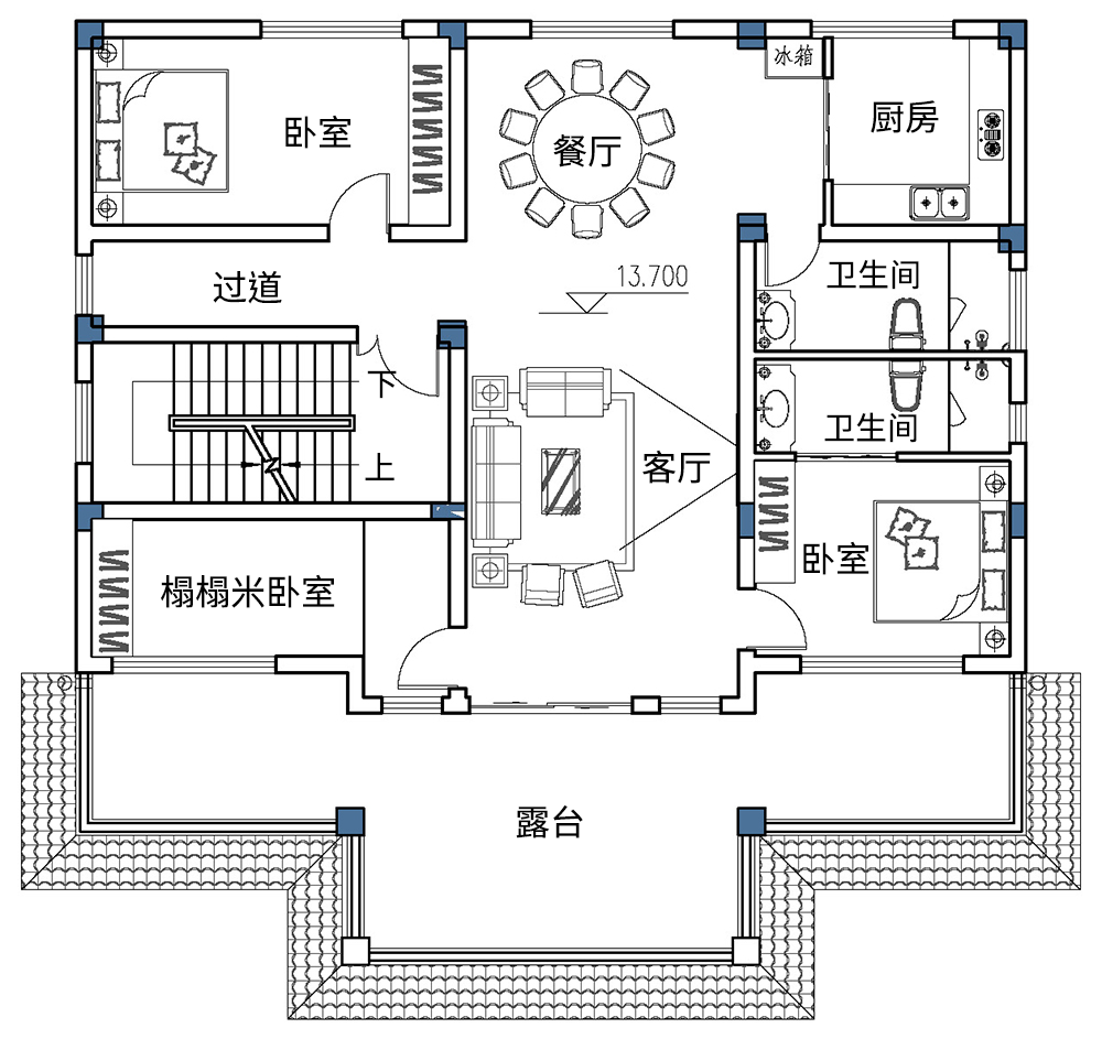
室内展示图:

室内布局有卧室、卫生间、储藏室、厨房、餐厅、阳台、茶室、露台



转载请注明出自轩鼎别墅设计:://www.lemeizhai.com/index.asp