城里面买房子,都是百来个平方的商品居,条件好一些就可以选择面积大一些的户型,在老家建房子则是,预算高就建楼层多一些的别墅,但是农村自建房也没有很多人想象中那么遥远,像下面这栋四层带多阳台和车库的="://www.lemeizhai.com/Picture.asp?PicClassID=94" target="_self" style="font-size: 20px; text-decoration: underline;">别墅设计,主体预估造价:128.0万左右。
效果图:

基本信息:
别墅层数: 四层
别墅风格: 欧式
占地面积:268㎡
开 间:16.4m
进 深:16.4m
建筑占地:16.4m×16.4m
建筑面积:800㎡
预估造价:128.0万
建筑结构:框架结构


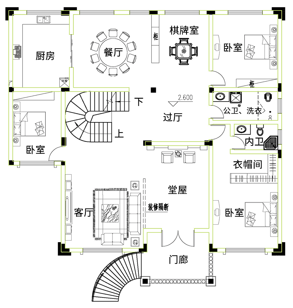
室内展示图:

主体设计:门廊、堂屋、客厅、餐厅、厨房、卧室、洗衣房、公卫、棋牌室、书房、阳台、露台。


。
转载请注明出自轩鼎别墅设计:://www.lemeizhai.com/index.asp