年初,安徽怀远的易总,找到我们轩鼎建筑,让我们为他设计一款既能体现安徽韵味又有自己独特设计的="://www.lemeizhai.com/Picture.asp?PicClassID=91" target="_self" style="font-size: 24px; text-decoration: underline;">三层别墅设计经过几天反复的沟通,了解易总想要的设计布局,效果特点的初步想法。下面这款别墅是设计师为易总独家设计的:
效果图:

基本信息:
别墅层数: 三层
别墅风格: 中式
占地面积:95㎡
开 间:9.9m
进 深:9.6m
建筑占地:9.9m×9.6m
建筑面积:237㎡
预估造价:38.0万
建筑结构:框架结构

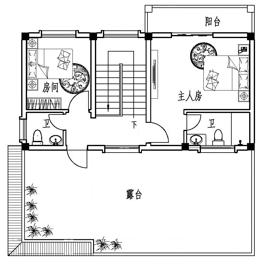
室内展示图:

主体设计:客厅、餐厅、厨房、卧室、公卫、车库、阳台、露台。

。

转载请注明出自轩鼎别墅设计:://www.lemeizhai.com/index.asp