农村建房子,适合自家生活需求的就是好房子,农村人挣点钱不易,建房子对每个家庭来说都是件大事,房子建好了,烦恼自然少了。今天这款安丘赵总私人订制的="://www.lemeizhai.com/Picture.asp?PicClassID=91" target="_self" style="text-decoration: underline; font-family: 楷体, 楷体_GB2312, SimKai; font-size: 20px;">三层欧式别墅设计,色调清新,有颜有档次,真正适合乡村的房子,在乡村非常吃香。
效果图:

基本信息:
别墅层数: 三层
别墅风格: 欧式
地面积:153㎡
开 间:12.9m
进 深:11.9m
建筑占地:12.9m×11.9m
建筑面积:354㎡
预估造价:56.6万


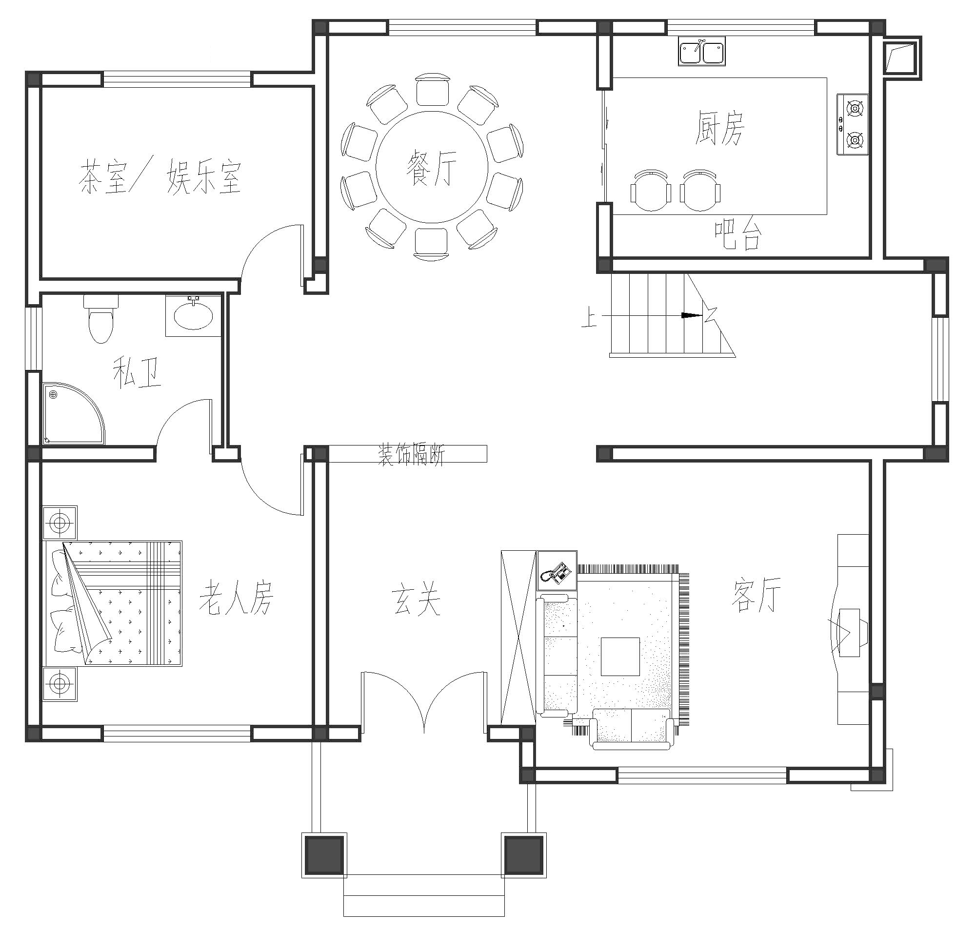
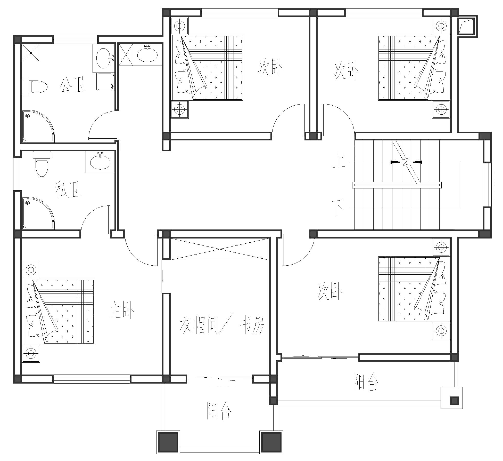
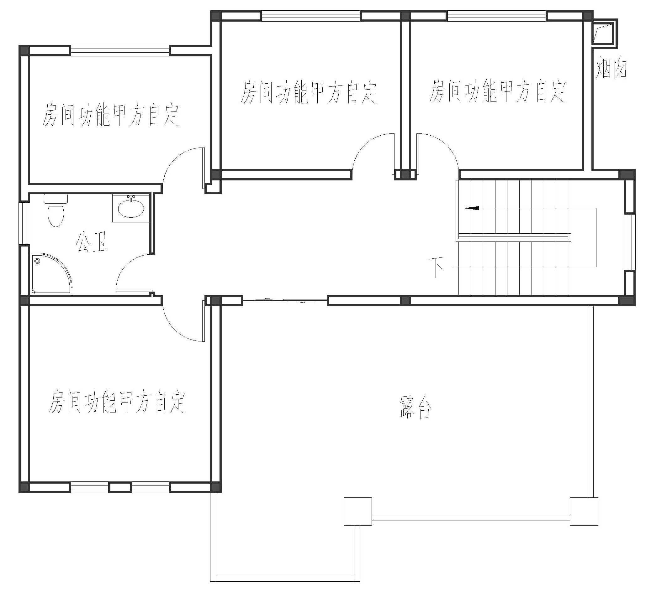
室内展示图:

主体设计:客厅、餐厅、厨房、卧室、公卫、阳台、露台。

。

转载请注明出自轩鼎别墅设计:://www.lemeizhai.com/index.asp